H系列高压及高压差直行程控制阀

■ 概要

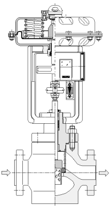
HAX2 62 41高压打孔阀芯双导向降噪单座笼式控制阀是HAX1 32 41高压打孔阀芯双导向单座笼式控制阀的变型产品。是在继承了HAX1 32 41运行平稳可靠、密封性能好、耐冲刷、抗气蚀等优点的基础上,专门为控制高压流体噪音场合设计的。高速流体通过阀门设计的均采用多孔结构形式的阀芯和套筒实现合理的扩散和膨胀,由规律性的小孔科学分配流速梯度,减少液体或气体的紊乱,局部降低流体的压力降,使噪音得到较理想的控制,可最大限度降低噪音20~30dBA。

HAX2 62 41高压打孔阀芯双导向降噪单座笼式控制阀适宜需要控制高压流体噪音场合及调节高压、大压差可压缩流体领域。

标准规格

阀体部分

 式:铸造球型阀

公称通径:HAX221:DN25;HAX321:DN40、50、80、100;HAX341:DN150、200

公称压力:ANSI 600、900、1500

            DIN PN63、100、160、250

            JIS 63K

        GB PN6.3、10.0、16.0Mpa

连接形式:法兰式:ANSI B16.5 RF、RTJ

                DIN2546/2547/2548 RF

                  GB/T9113 RF、RJ

    焊接式:ANSI B16.5 嵌接焊SW(DN≤80);对接焊BW(DN>80)

距:ANSI符合IEC60534-3-1及ASME B16.10

          DIN PN63、100、160符合DIN3202-F2(等同于ISO5752标准系列2)

          DIN PN250符合DIN3202-F3

          GB PN6.3、10.0、16.0Mpa符合GB12221标准系列2(等同于ISO5752标准系列2)

         请参阅表6.1~6.2及《C·H·R 三大系列控制阀综合样本》

阀体材质:请参阅表1;使用温度、压力范围请参阅图3

上阀盖型式:标准型…………-46~300℃

    散热片型…………300℃~530℃

   (需注意各种材料的使用温度、压力范围)

 料:石墨组合填料、石墨填料等

    使用温度范围请参阅表2、图2

垫:金属夹石墨密封垫、石墨密封垫

阀内件部分

阀芯型式:多孔圆筒阀芯

流量特性:等百分比、线性 (请参阅图4)

阀内件材质:标准材质组合及使用温度范围请参阅表3

执行机构

 式:DA系列多弹簧薄膜式

弹簧范围:请参阅表5.1~5.2

供气压力:最大6bar

气源接口:G1/8(DA1/DA2)、G1/4(DA3/DA4)、G3/4(DA5)

环境温度:-20℃~+80℃

标准规格:请参阅表5.1~5.2

选配附件

定位器、过滤减压阀、电磁阀、限位开关、阀位变送器、手动机构等

整机作用方式

气开式(带反作用执行机构)、气关式(带正作用执行机构)

整机性能

   比:50:1

阀座泄漏量:符合ANSI B16.104Ⅳ级、Ⅴ级

   差:3%(不带定位器)

       1%(带定位器)

线    性:±5%(不带定位器)

       ±1%(带定位器)

 额定Cv值:请参阅表4

 允许压差:请参阅表5.1~5.2

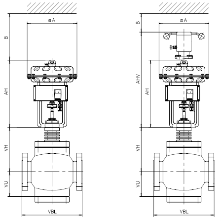
 外形尺寸:请参阅图5、表6.1~6.2

 产品重量:请参阅表6.1~6.2

■ 特殊规格:(按用户要求制造,具体内容如下)

●特殊检查

 流量特性检查、材料检查(试验报告)、低温试验、蒸气试验、非破坏检查、放射线检查

●禁铜处理       ●接触大气部分SUS不锈钢螺栓、螺母    

●指定色涂层      ●特殊空气配管和特殊接头

●防砂、防尘型     ●完全除油、除水处理    

●真空工作条件用    ●防强腐蚀型

●寒带地区用      ●热带地区用

 

1:阀体材质

德国

美国

中国

温度范围

1.0619 GP240GH

A 216 WCB ASTM

ZG20

-10℃~400℃

1.4308

(CF8)

ZG0Cr18Ni9

-200℃~530℃

1.4408 G-X 5 CrNiMo 19-11-2

A 351(CF8M ASTM)

ZG0Cr17Ni12Mo2

-200℃~530℃

1.4581 GX5CrNiMoNb 19-11-2

-200℃~530℃

1.7357 G17-CrMo 5-5

A 217(WC6)ASTM

-10℃~450℃

1.7379 G17 CrMo 9-10

A 217(WC9)ASTM

-10℃~450℃

 

2:填料的使用温度范围

填料类型(A所示)

代码

防尘圈材质(D所示)

温度范围

上阀盖型式

备注说明

石墨+因科镍填料

3

NBR(丁腈橡胶)

(VITON(氟橡胶))

-20℃~400℃

标准型/带散热片型

一般场合

纯石墨填料

(密度1.6)

5

VITON

(氟橡胶)

-196℃~530℃

标准型/带散热片型

高、低温场合

石墨+PTFE

6

NBR(丁腈橡胶)

-196℃~200℃

标准型/伸长型

低温场合

注:选择温度范围时,如无特殊要求,应就近选择。

2

3:温压曲线

 

3:阀内件标准材质组合及使用温度范围

打孔阀芯

阀座

阀座密封形式

适用温度

316(1.4571)氮化处理

316(1.4571)

金属对金属

-46~530℃

3Cr17NiMo(1.4122)氮化处理

2Cr13(1.4021)

金属对金属

9Cr18MoV(1.4112)硬化处理

9Cr18MoV(1.4112)硬化处理

金属对金属

4:额定Cv值

阀芯形式

打孔阀芯

流量特性

线性

等百分比

公称通径

行程

Cv1

Cv2

Cv3

Cv1

Cv2

Cv3

15

20

25

20

11.7

8.2

4.7

8.2

4.7

32

40

20

31

21

19

13

50

30

50

31

41

25

65

80

30

94

70

65

65

50

44

100

30

129

94

70

80

65

50

150

60

445

304

198

246

176

146

200

60

527

445

304

304

246

176

250

300

350

400

等百分比特性(% 金属阀座)                   线性特性(L 金属阀座)

 

                            4  流量特性曲线

5.1:允许压差(泄漏等级Ⅳ级):

执行机构DA2、3系列

作用型式:气开

弹簧数量

作用型式:气关

弹簧数量

公称通径DN(mm)

最大行程(mm)

执行机构

尺寸参数

Cv

阀座直径

(mm)

3

6

9

12

3

3

3

6

6

bar

bar

bar

bar

供气压力(bar)

3.0

4.5

6.0

4.5

6.0

25

1″

20

DA2DR—3XX

8000px2 (50in2

11.7

24

0.5

53.6

-

-

53.6

159.7

160.0

53.6

159.7

8.2

24

0.5

53.6

-

-

53.6

159.7

160.0

53.6

159.7

4.7

19

3.6

88.3

-

-

88.3

160.0

160.0

88.3

160.0

40

1 1/2″

20

DA2DR—2*(3)XX

8000px2 (50in2

31

37

-

20.6

-

-

20.6

65.3

110.0

20.6

65.3

21

37

-

20.6

-

-

20.6

65.3

110.0

20.6

65.3

19

37

-

20.6

-

-

20.6

65.3

110.0

20.6

65.3

13

37

-

20.6

-

-

20.6

65.3

110.0

20.6

65.3

50

2″

30

DA2DR—5XX

8000px2 (50in2

50

48

-

11.3

-

-

11.3

37.9

64.4

11.3

37.9

41

48

-

11.3

-

-

11.3

37.9

64.4

11.3

37.9

31

37

-

20.6

-

-

20.6

65.3

110.0

20.6

65.3

25

37

-

20.6

-

-

20.6

65.3

110.0

20.6

65.3

DA3DR—1XX

18000px2 (111in2

50

48

12.4

40.1

56.7

73.2

44.5

104.2

160.0

44.5

104.2

41

48

12.4

40.1

56.7

73.2

44.5

104.2

160.0

44.5

104.2

31

37

22.5

69.0

97.0

124.9

76.5

160.0

160.0

76.5

160.0

25

37

22.5

69.0

97.0

124.9

76.5

160.0

160.0

76.5

160.0

80

3″

30

DA2DR—5XX

8000px2 (50in2

94

73

-

4.0

-

-

4.0

15.4

26.9

4.0

15.4

65%

73

-

4.0

-

-

4.0

15.4

26.9

4.0

15.4

70

62

-

6.1

-

-

6.1

22.0

37.9

6.1

22.0

50

62

-

6.1

-

-

6.1

22.0

37.9

6.1

22.0

65L

48

-

11.3

-

-

11.3

37.9

64.4

11.3

37.9

44

48

-

11.3

-

-

11.3

37.9

64.4

11.3

37.9

DA3DR—1XX

18000px2 (111in2

94

73

4.4

16.4

23.6

30.7

18.3

44.1

69.9

18.3

44.1

65%

73

4.4

16.4

23.6

30.7

18.3

44.1

69.9

18.3

44.1

70

62

6.7

23.3

33.2

43.2

25.9

61.7

97.5

25.9

61.7

50

62

6.7

23.3

33.2

43.2

25.9

61.7

97.5

25.9

61.7

65L

48

12.4

40.1

56.7

73.2

44.5

104.2

160.0

44.5

104.2

44

48

12.4

40.1

56.7

73.2

44.5

104.2

160.0

44.5

104.2

100

4″

30

DA2DR—5XX

8000px2 (50in2

129

90

-

2.2

-

-

2.2

9.7

17.3

2.2

9.7

80

90

-

2.2

-

-

2.2

9.7

17.3

2.2

9.7

94

73

-

4.0

-

-

4.0

15.4

26.9

4.0

15.4

65

73

-

4.0

-

-

4.0

15.4

26.9

4.0

15.4

70

62

-

6.1

-

-

6.1

22.0

37.9

6.1

22.0

50

62

-

6.1

-

-

6.1

22.0

37.9

6.1

22.0

DA3DR—1XX

18000px2 (111in2

129

90

2.5

10.4

15.1

19.8

11.6

28.6

45.6

11.6

28.6

80

90

2.5

10.4

15.1

19.8

11.6

28.6

45.6

11.6

28.6

94

73

4.4

16.4

23.6

30.7

18.3

44.1

69.9

18.3

44.1

65

73

4.4

16.4

23.6

30.7

18.3

44.1

69.9

18.3

44.1

70

62

6.7

23.3

33.2

43.2

25.9

61.7

97.5

25.9

61.7

50

62

6.7

23.3

33.2

43.2

25.9

61.7

97.5

25.9

61.7

150

6″

60

DA3DR—2XX

18000px2 (111in2

445

143

0.6

4.1

6.2

8.3

4.7

12.2

19.8

4.7

12.2

246

143

0.6

4.1

6.2

8.3

4.7

12.2

19.8

4.7

12.2

304

113

1.2

6.2

9.2

12.2

7.0

17.8

28.6

7.0

17.8

176

113

1.2

6.2

9.2

12.2

7.0

17.8

28.6

7.0

17.8

198

90

2.5

10.4

15.1

19.8

11.6

28.6

45.6

11.6

28.6

146

90

2.5

10.4

15.1

19.8

11.6

28.6

45.6

11.6

28.6

200

8″

60

DA3DR—2XX

18000px2 (111in2

527

172

0.1

2.3

3.6

4.9

2.6

7.3

11.9

2.6

7.3

304%

172

0.1

2.3

3.6

4.9

2.6

7.3

11.9

2.6

7.3

445

143

0.6

4.1

6.2

8.3

4.7

12.2

19.8

4.7

12.2

246

143

0.6

4.1

6.2

8.3

4.7

12.2

19.8

4.7

12.2

304L

113

1.2

6.2

9.2

12.2

7.0

17.8

28.6

7.0

17.8

176

113

1.2

6.2

9.2

12.2

7.0

17.8

28.6

7.0

17.8

执行机构DA5系列

弹簧数量

弹簧数量

4

6

8

2

2

2

4

4

公称通径DN(mm)

最大行程(mm)

执行机构

尺寸参数

Cv

阀座直径

(mm)

bar

bar

bar

供气压力(bar)

3.0

4.5

6.0

4.5

6.0

150

6″

60

DA5DR—1XX

40000px2 (248in2

445

143

11.1

18.1

25.1

26.1

45.7

64.9

35.9

55.1

246

143

11.1

18.1

25.1

26.1

45.7

64.9

35.9

55.1

304

113

16.2

26.2

36.1

37.6

65.6

93.0

51.6

79.0

176

113

16.2

26.2

36.1

37.6

65.6

93.0

51.6

79.0

198

90

26.1

41.8

57.5

59.9

103.9

147.2

81.9

125.2

146

90

26.1

41.8

57.5

59.9

103.9

147.2

81.9

125.2

200

8″

60

DA5DR—1XX

40000px2 (248in2

527

172

6.6

10.9

15.2

15.8

27.9

39.7

21.9

33.7

304%

172

6.6

10.9

15.2

15.8

27.9

39.7

21.9

33.7

445

143

11.1

18.1

25.1

26.1

45.7

64.9

35.9

55.1

246

143

11.1

18.1

25.1

26.1

45.7

64.9

35.9

55.1

304L

113

16.2

26.2

36.1

37.6

65.6

93.0

51.6

79.0

176

113

16.2

26.2

36.1

37.6

65.6

93.0

51.6

79.0

注:1.“*”表示代号为1、2的直压式连接支架(常温),其余为圆螺母压紧式连接支架(常温或高温)。

2. “XX”的代码含义详见DA系列执行机构样本。

 5.2:允许压差(泄漏等级Ⅴ级):

执行机构DA2、3系列

作用型式:气开

弹簧数量

作用型式:气关

弹簧数量

公称通径DN(mm)

最大行程(mm)

执行机构

尺寸参数

Cv

阀座直径

(mm)

3

6

9

12

3

3

3

6

6

bar

bar

bar

bar

供气压力(bar)

3.0

4.5

6.0

4.5

6.0

25

1″

20

DA2DR—3XX

8000px2 (50in2

11.7

24

-

20.3

-

-

20.3

126.4

160.0

20.3

126.4

8.2

24

-

20.3

-

-

20.3

126.4

160.0

20.3

126.4

4.7

24

-

20.3

-

-

20.3

126.4

160.0

20.3

126.4

40

1 1/2″

20

DA2DR—2*(3)XX

8000px2 (50in2

31

37

-

-

-

-

-

43.7

88.4

-

43.7

21

37

-

-

-

-

-

43.7

88.4

-

43.7

19

37

-

-

-

-

-

43.7

88.4

-

43.7

13

37

-

-

-

-

-

43.7

88.4

-

43.7

50

2″

30

DA2DR—5XX

8000px2 (50in2

50

48

-

-

-

-

-

21.2

47.7

-

21.2

41

48

-

-

-

-

-

21.2

47.7

-

21.2

31

37

-

-

-

-

-

43.7

88.4

-

43.7

25

37

-

-

-

-

-

43.7

88.4

-

43.7

DA3DR—1XX

18000px2 (111in2

50

48

-

23.4

40.0

56.6

27.8

87.5

147.2

27.8

87.5

41

48

-

23.4

40.0

56.6

27.8

87.5

147.2

27.8

87.5

31

37

0.9

47.4

75.3

103.2

54.9

155.4

160.0

54.9

155.4

25

37

0.9

47.4

75.3

103.2

54.9

155.4

160.0

54.9

155.4

80

3″

30

DA2DR—5XX

8000px2 (50in2

94

73

-

-

-

-

-

4.5

15.9

-

4.5

65%

73

-

-

-

-

-

4.5

15.9

-

4.5

70

62

-

-

-

-

-

9.1

25.0

-

9.1

50

62

-

-

-

-

-

9.1

25.0

-

9.1

65L

48

-

-

-

-

-

21.2

47.7

-

21.2

44

48

-

-

-

-

-

21.2

47.7

-

21.2

DA3DR—1XX

18000px2 (111in2

94

73

-

5.4

12.6

19.8

7.3

33.2

59.0

7.3

33.2

65%

73

-

5.4

12.6

19.8

7.3

33.2

59.0

7.3

33.2

70

62

-

10.4

20.3

30.3

13.0

48.8

84.6

13.0

48.8

50

62

-

10.4

20.3

30.3

13.0

48.8

84.6

13.0

48.8

65L

48

-

23.4

40.0

56.6

27.8

87.5

147.2

27.8

87.5

44

48

-

23.4

40.0

56.6

27.8

87.5

147.2

27.8

87.5

100

4″

30

DA2DR—5XX

8000px2 (50in2

129

90

-

-

-

-

-

0.8

8.4

-

0.8

80

90

-

-

-

-

-

0.8

8.4

-

0.8

94

73

-

-

-

-

-

4.5

15.9

-

4.5

65

73

-

-

-

-

-

4.5

15.9

-

4.5

70

62

-

-

-

-

-

9.1

25.0

-

9.1

50

62

-

-

-

-

-

9.1

25.0

-

9.1

DA3DR—1XX

18000px2 (111in2

129

90

-

1.5

6.2

10.9

2.7

19.7

36.7

2.7

19.7

80

90

-

1.5

6.2

10.9

2.7

19.7

36.7

2.7

19.7

94

73

-

5.4

12.6

19.8

7.3

33.2

59.0

7.3

33.2

65

73

-

5.4

12.6

19.8

7.3

33.2

59.0

7.3

33.2

70

62

-

10.4

20.3

30.3

13.0

48.8

84.6

13.0

48.8

50

62

-

10.4

20.3

30.3

13.0

48.8

84.6

13.0

48.8

150

6″

60

DA3DR—2XX

18000px2 (111in2

445

143

-

-

0.3

2.4

-

6.3

13.8

-

6.3

246

143

-

-

0.3

2.4

-

6.3

13.8

-

6.3

304

113

-

-

2.1

5.1

-

10.7

21.5

-

10.7

176

113

-

-

2.1

5.1

-

10.7

21.5

-

10.7

198

90

-

1.5

6.2

10.9

2.7

19.7

36.7

2.7

19.7

146

90

-

1.5

6.2

10.9

2.7

19.7

36.7

2.7

19.7

200

8″

60

DA3DR—2XX

18000px2 (111in2

527

172

-

-

-

0.2

-

2.6

7.3

-

2.6

304%

172

-

-

-

0.2

-

2.6

7.3

-

2.6

445

143

-

-

0.3

2.4

-

6.3

13.8

-

6.3

246

143

-

-

0.3

2.4

-

6.3

13.8

-

6.3

304L

113

-

-

2.1

5.1

-

10.7

21.5

-

10.7

176

113

-

-

2.1

5.1

-

10.7

21.5

-

10.7

执行机构DA5系列

弹簧数量

弹簧数量

4

6

8

2

2

2

4

4

公称通径DN(mm)

最大行程(mm)

执行机构尺寸参数

Cv

阀座直径

(mm)

bar

bar

bar

供气压力(bar)

3.0

4.5

6.0

4.5

6.0

150

6″

60

DA5DR—1XX

40000px2 (248in2

445

143

5.2

12.2

19.2

20.2

39.8

59.0

30.0

49.2

246

143

5.2

12.2

19.2

20.2

39.8

59.0

30.0

49.2

304

113

9.1

19.1

29.1

30.6

58.5

85.9

44.5

72.0

176

113

9.1

19.1

29.1

30.6

58.5

85.9

44.5

72.0

198

90

17.2

32.9

48.7

51.0

95.0

138.3

73.0

116.3

146

90

17.2

32.9

48.7

51.0

95.0

138.3

73.0

116.3

200

8″

60

DA5DR—1XX

40000px2 (248in2

527

172

1.9

6.2

10.5

11.2

23.3

35.1

17.2

29.1

304%

172

1.9

6.2

10.5

11.2

23.3

35.1

17.2

29.1

445

143

5.2

12.2

19.2

20.2

39.8

59.0

30.0

49.2

246

143

5.2

12.2

19.2

20.2

39.8

59.0

30.0

49.2

304L

113

9.1

19.1

29.1

30.6

58.5

85.9

44.5

72.0

176

113

9.1

19.1

29.1

30.6

58.5

85.9

44.5

72.0

注:1.“*”表示代号为1、2的直压式连接支架(常温),其余为圆螺母压紧式连接支架(常温或高温)。

2. “XX”的代码含义详见DA系列执行机构样本。

    5  DN25~DN200(1″~ 8″)

6.1:外形(mm)尺寸及重量(Kg)(DN25~DN200,DIN PN63/100/160/250)

阀体法兰尺寸符合 DIN 2546/2547/2548
法兰距尺寸DIN PN64/100/160符合DIN 3202-F2、DIN PN250符合DIN 3202-F3

阀体组件

DN

25

40

50

80

100

150

200

VBL

PN63/PN100/PN160

230

260

300

380

430

550

700*

PN250

260

300

350

450

520

700

800

VH

300℃

132

159

178

220

255

342

357

≥300℃

167

239

243

300

332

402

447

VU

3法兰

68

103

113

153

178

228

260

4法兰

174

219

254

314

366

执行机构

φA

DA2

270

DA3

400

DA5

596

AH

DA2

361

DA3

489

625

DA5

840

AHV

DA2

508

DA3

657

888

B

130

150

200

重量

DA2

34

42

72

101

136

DA3

98

127

162

317

607

DA5

460

750

注:1.重量=阀体组件+执行机构(不含手轮机构)

  2.*不遵循 DIN 3202-F2

6.2:外形尺寸(mm)及重量(Kg)(1″~ 8″,ANSI600/900/1500)

阀体法兰尺寸符合 ANSI  B16.5 CLASS 600/900/1500 RF/RTJ

阀体法兰距符合ASME B16.10 CLASS600/900/1500RF/RTJ及IEC60534-3-1

阀体组件

DN

1″

1 1/2″

2″

3″

4″

6″

8″

VBL

Cl. 600

RF

216

241

292

356

432

559

660

RTJ

216

241

295

359

435

562

664

VBL

Cl. 900

RF

254

305

368

381

457

610

737

RTJ

254

305

372

384

460

613

740

VBL

Cl. 1500

RF

254

305

368

470

546

705

832

RTJ

254

305

371

473

549

711

841

VH

300℃

132

159

178

220

255

342

357

≥300℃

167

239

243

300

332

402

447

VU

3法兰

68

103

113

153

178

228

260

4法兰

174

219

254

314

366

执行机构

φA

DA2

270

DA3

400

DA5

596

AH

DA2

361

DA3

489

625

DA5

840

AHV

DA2

508

DA3

657

888

B

130

150

200

重量

DA2

34

42

72

101

136

DA3

98

127

162

317

607

DA5

460

750

注:重量=阀体组件+执行机构(不含手轮机构)