
■ 概要
HAX2 62 41高压打孔阀芯双导向降噪单座笼式控制阀是HAX1 32 41高压打孔阀芯双导向单座笼式控制阀的变型产品。是在继承了HAX1 32 41运行平稳可靠、密封性能好、耐冲刷、抗气蚀等优点的基础上,专门为控制高压流体噪音场合设计的。高速流体通过阀门设计的均采用多孔结构形式的阀芯和套筒实现合理的扩散和膨胀,由规律性的小孔科学分配流速梯度,减少液体或气体的紊乱,局部降低流体的压力降,使噪音得到较理想的控制,可最大限度降低噪音20~30dBA。
HAX2 62 41高压打孔阀芯双导向降噪单座笼式控制阀适宜需要控制高压流体噪音场合及调节高压、大压差可压缩流体领域。
■ 标准规格
阀体部分
型 式:铸造球型阀
公称通径:HAX221:DN25;HAX321:DN40、50、80、100;HAX341:DN150、200
公称压力:ANSI 600、900、1500
DIN PN63、100、160、250
JIS 63K
GB PN6.3、10.0、16.0Mpa
连接形式:法兰式:ANSI B16.5 RF、RTJ
DIN2546/2547/2548 RF
GB/T9113 RF、RJ
焊接式:ANSI B16.5 嵌接焊SW(DN≤80);对接焊BW(DN>80)
法 兰 距:ANSI符合IEC60534-3-1及ASME B16.10
DIN PN63、100、160符合DIN3202-F2(等同于ISO5752标准系列2)
DIN PN250符合DIN3202-F3
GB PN6.3、10.0、16.0Mpa符合GB12221标准系列2(等同于ISO5752标准系列2)
请参阅表6.1~6.2及《C·H·R 三大系列控制阀综合样本》
阀体材质:请参阅表1;使用温度、压力范围请参阅图3
上阀盖型式:标准型…………-46~300℃
散热片型…………300℃~530℃
(需注意各种材料的使用温度、压力范围)
填 料:石墨组合填料、石墨填料等
使用温度范围请参阅表2、图2
密 封 垫:金属夹石墨密封垫、石墨密封垫
阀内件部分
阀芯型式:多孔圆筒阀芯
流量特性:等百分比、线性 (请参阅图4)
阀内件材质:标准材质组合及使用温度范围请参阅表3
执行机构
型 式:DA系列多弹簧薄膜式
弹簧范围:请参阅表5.1~5.2
供气压力:最大6bar
气源接口:G1/8(DA1/DA2)、G1/4(DA3/DA4)、G3/4(DA5)
环境温度:-20℃~+80℃
标准规格:请参阅表5.1~5.2
选配附件
定位器、过滤减压阀、电磁阀、限位开关、阀位变送器、手动机构等
整机作用方式
气开式(带反作用执行机构)、气关式(带正作用执行机构)
整机性能
可 调 比:50:1
阀座泄漏量:符合ANSI B16.104Ⅳ级、Ⅴ级
回 差:3%(不带定位器)
1%(带定位器)
线 性:±5%(不带定位器)
±1%(带定位器)
额定Cv值:请参阅表4
允许压差:请参阅表5.1~5.2
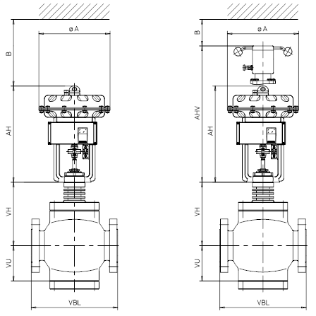
外形尺寸:请参阅图5、表6.1~6.2
产品重量:请参阅表6.1~6.2
■ 特殊规格:(按用户要求制造,具体内容如下)
●特殊检查
流量特性检查、材料检查(试验报告)、低温试验、蒸气试验、非破坏检查、放射线检查
●禁铜处理 ●接触大气部分SUS不锈钢螺栓、螺母
●指定色涂层 ●特殊空气配管和特殊接头
●防砂、防尘型 ●完全除油、除水处理
●真空工作条件用 ●防强腐蚀型
●寒带地区用 ●热带地区用

表1:阀体材质
德国 | 美国 | 中国 | 温度范围 |
1.0619 GP240GH | A 216 WCB ASTM | ZG20 | -10℃~400℃ |
1.4308 | (CF8) | ZG0Cr18Ni9 | -200℃~530℃ |
1.4408 G-X 5 CrNiMo 19-11-2 | A 351(CF8M ASTM) | ZG0Cr17Ni12Mo2 | -200℃~530℃ |
1.4581 GX5CrNiMoNb 19-11-2 | — |
| -200℃~530℃ |
1.7357 G17-CrMo 5-5 | A 217(WC6)ASTM |
| -10℃~450℃ |
1.7379 G17 CrMo 9-10 | A 217(WC9)ASTM |
| -10℃~450℃ |
表2:填料的使用温度范围
填料类型(A所示) | 代码 | 防尘圈材质(D所示) | 温度范围 | 上阀盖型式 | 备注说明 |
石墨+因科镍填料 | 3 | NBR(丁腈橡胶) (VITON(氟橡胶)) | -20℃~400℃ | 标准型/带散热片型 | 一般场合 |
纯石墨填料 (密度1.6) | 5 | VITON (氟橡胶) | -196℃~530℃ | 标准型/带散热片型 | 高、低温场合 |
石墨+PTFE | 6 | NBR(丁腈橡胶) | -196℃~200℃ | 标准型/伸长型 | 低温场合 |
注:选择温度范围时,如无特殊要求,应就近选择。
图2
图3:温压曲线
表3:阀内件标准材质组合及使用温度范围
打孔阀芯 | 阀座 | 阀座密封形式 | 适用温度 |
316(1.4571)氮化处理 | 316(1.4571) | 金属对金属 | -46~530℃ |
3Cr17NiMo(1.4122)氮化处理 | 2Cr13(1.4021) | 金属对金属 | |
9Cr18MoV(1.4112)硬化处理 | 9Cr18MoV(1.4112)硬化处理 | 金属对金属 |
表4:额定Cv值
阀芯形式 | 打孔阀芯 | ||||||
流量特性 | 线性 | 等百分比 | |||||
公称通径 | 行程 | Cv1 | Cv2 | Cv3 | Cv1 | Cv2 | Cv3 |
15 |
|
| |||||
20 |
|
| |||||
25 | 20 | 11.7 | 8.2 | 4.7 | 8.2 | 4.7 |
|
32 |
|
| |||||
40 | 20 | 31 | 21 |
| 19 | 13 |
|
50 | 30 | 50 | 31 |
| 41 | 25 |
|
65 |
|
| |||||
80 | 30 | 94 | 70 | 65 | 65 | 50 | 44 |
100 | 30 | 129 | 94 | 70 | 80 | 65 | 50 |
150 | 60 | 445 | 304 | 198 | 246 | 176 | 146 |
200 | 60 | 527 | 445 | 304 | 304 | 246 | 176 |
250 |
|
| |||||
300 |
|
| |||||
350 |
|
| |||||
400 |
|
| |||||

等百分比特性(% 金属阀座) 线性特性(L 金属阀座)
图4 流量特性曲线
表5.1:允许压差(泄漏等级Ⅳ级):
执行机构DA2、3系列 | 作用型式:气开 弹簧数量 | 作用型式:气关 弹簧数量 | |||||||||||||
公称通径DN(mm) | 最大行程(mm) | 执行机构 尺寸参数 | Cv | 阀座直径 (mm) | 3 | 6 | 9 | 12 | 3 | 3 | 3 | 6 | 6 | ||
bar | bar | bar | bar | 供气压力(bar) | |||||||||||
3.0 | 4.5 | 6.0 | 4.5 | 6.0 | |||||||||||
25 1″ | 20 | DA2DR—3XX 8000px2 (50in2) | 11.7 | 24 | 0.5 | 53.6 | - | - | 53.6 | 159.7 | 160.0 | 53.6 | 159.7 | ||
8.2 | 24 | 0.5 | 53.6 | - | - | 53.6 | 159.7 | 160.0 | 53.6 | 159.7 | |||||
4.7 | 19 | 3.6 | 88.3 | - | - | 88.3 | 160.0 | 160.0 | 88.3 | 160.0 | |||||
40 1 1/2″ | 20 | DA2DR—2*(3)XX 8000px2 (50in2) | 31 | 37 | - | 20.6 | - | - | 20.6 | 65.3 | 110.0 | 20.6 | 65.3 | ||
21 | 37 | - | 20.6 | - | - | 20.6 | 65.3 | 110.0 | 20.6 | 65.3 | |||||
19 | 37 | - | 20.6 | - | - | 20.6 | 65.3 | 110.0 | 20.6 | 65.3 | |||||
13 | 37 | - | 20.6 | - | - | 20.6 | 65.3 | 110.0 | 20.6 | 65.3 | |||||
50 2″ | 30 | DA2DR—5XX 8000px2 (50in2) | 50 | 48 | - | 11.3 | - | - | 11.3 | 37.9 | 64.4 | 11.3 | 37.9 | ||
41 | 48 | - | 11.3 | - | - | 11.3 | 37.9 | 64.4 | 11.3 | 37.9 | |||||
31 | 37 | - | 20.6 | - | - | 20.6 | 65.3 | 110.0 | 20.6 | 65.3 | |||||
25 | 37 | - | 20.6 | - | - | 20.6 | 65.3 | 110.0 | 20.6 | 65.3 | |||||
DA3DR—1XX 18000px2 (111in2) | 50 | 48 | 12.4 | 40.1 | 56.7 | 73.2 | 44.5 | 104.2 | 160.0 | 44.5 | 104.2 | ||||
41 | 48 | 12.4 | 40.1 | 56.7 | 73.2 | 44.5 | 104.2 | 160.0 | 44.5 | 104.2 | |||||
31 | 37 | 22.5 | 69.0 | 97.0 | 124.9 | 76.5 | 160.0 | 160.0 | 76.5 | 160.0 | |||||
25 | 37 | 22.5 | 69.0 | 97.0 | 124.9 | 76.5 | 160.0 | 160.0 | 76.5 | 160.0 | |||||
80 3″ | 30 | DA2DR—5XX 8000px2 (50in2) | 94 | 73 | - | 4.0 | - | - | 4.0 | 15.4 | 26.9 | 4.0 | 15.4 | ||
65% | 73 | - | 4.0 | - | - | 4.0 | 15.4 | 26.9 | 4.0 | 15.4 | |||||
70 | 62 | - | 6.1 | - | - | 6.1 | 22.0 | 37.9 | 6.1 | 22.0 | |||||
50 | 62 | - | 6.1 | - | - | 6.1 | 22.0 | 37.9 | 6.1 | 22.0 | |||||
65L | 48 | - | 11.3 | - | - | 11.3 | 37.9 | 64.4 | 11.3 | 37.9 | |||||
44 | 48 | - | 11.3 | - | - | 11.3 | 37.9 | 64.4 | 11.3 | 37.9 | |||||
DA3DR—1XX 18000px2 (111in2) | 94 | 73 | 4.4 | 16.4 | 23.6 | 30.7 | 18.3 | 44.1 | 69.9 | 18.3 | 44.1 | ||||
65% | 73 | 4.4 | 16.4 | 23.6 | 30.7 | 18.3 | 44.1 | 69.9 | 18.3 | 44.1 | |||||
70 | 62 | 6.7 | 23.3 | 33.2 | 43.2 | 25.9 | 61.7 | 97.5 | 25.9 | 61.7 | |||||
50 | 62 | 6.7 | 23.3 | 33.2 | 43.2 | 25.9 | 61.7 | 97.5 | 25.9 | 61.7 | |||||
65L | 48 | 12.4 | 40.1 | 56.7 | 73.2 | 44.5 | 104.2 | 160.0 | 44.5 | 104.2 | |||||
44 | 48 | 12.4 | 40.1 | 56.7 | 73.2 | 44.5 | 104.2 | 160.0 | 44.5 | 104.2 | |||||
100 4″ | 30 | DA2DR—5XX 8000px2 (50in2) | 129 | 90 | - | 2.2 | - | - | 2.2 | 9.7 | 17.3 | 2.2 | 9.7 | ||
80 | 90 | - | 2.2 | - | - | 2.2 | 9.7 | 17.3 | 2.2 | 9.7 | |||||
94 | 73 | - | 4.0 | - | - | 4.0 | 15.4 | 26.9 | 4.0 | 15.4 | |||||
65 | 73 | - | 4.0 | - | - | 4.0 | 15.4 | 26.9 | 4.0 | 15.4 | |||||
70 | 62 | - | 6.1 | - | - | 6.1 | 22.0 | 37.9 | 6.1 | 22.0 | |||||
50 | 62 | - | 6.1 | - | - | 6.1 | 22.0 | 37.9 | 6.1 | 22.0 | |||||
DA3DR—1XX 18000px2 (111in2) | 129 | 90 | 2.5 | 10.4 | 15.1 | 19.8 | 11.6 | 28.6 | 45.6 | 11.6 | 28.6 | ||||
80 | 90 | 2.5 | 10.4 | 15.1 | 19.8 | 11.6 | 28.6 | 45.6 | 11.6 | 28.6 | |||||
94 | 73 | 4.4 | 16.4 | 23.6 | 30.7 | 18.3 | 44.1 | 69.9 | 18.3 | 44.1 | |||||
65 | 73 | 4.4 | 16.4 | 23.6 | 30.7 | 18.3 | 44.1 | 69.9 | 18.3 | 44.1 | |||||
70 | 62 | 6.7 | 23.3 | 33.2 | 43.2 | 25.9 | 61.7 | 97.5 | 25.9 | 61.7 | |||||
50 | 62 | 6.7 | 23.3 | 33.2 | 43.2 | 25.9 | 61.7 | 97.5 | 25.9 | 61.7 | |||||
150 6″ | 60 | DA3DR—2XX 18000px2 (111in2) | 445 | 143 | 0.6 | 4.1 | 6.2 | 8.3 | 4.7 | 12.2 | 19.8 | 4.7 | 12.2 | ||
246 | 143 | 0.6 | 4.1 | 6.2 | 8.3 | 4.7 | 12.2 | 19.8 | 4.7 | 12.2 | |||||
304 | 113 | 1.2 | 6.2 | 9.2 | 12.2 | 7.0 | 17.8 | 28.6 | 7.0 | 17.8 | |||||
176 | 113 | 1.2 | 6.2 | 9.2 | 12.2 | 7.0 | 17.8 | 28.6 | 7.0 | 17.8 | |||||
198 | 90 | 2.5 | 10.4 | 15.1 | 19.8 | 11.6 | 28.6 | 45.6 | 11.6 | 28.6 | |||||
146 | 90 | 2.5 | 10.4 | 15.1 | 19.8 | 11.6 | 28.6 | 45.6 | 11.6 | 28.6 | |||||
200 8″ | 60 | DA3DR—2XX 18000px2 (111in2) | 527 | 172 | 0.1 | 2.3 | 3.6 | 4.9 | 2.6 | 7.3 | 11.9 | 2.6 | 7.3 | ||
304% | 172 | 0.1 | 2.3 | 3.6 | 4.9 | 2.6 | 7.3 | 11.9 | 2.6 | 7.3 | |||||
445 | 143 | 0.6 | 4.1 | 6.2 | 8.3 | 4.7 | 12.2 | 19.8 | 4.7 | 12.2 | |||||
246 | 143 | 0.6 | 4.1 | 6.2 | 8.3 | 4.7 | 12.2 | 19.8 | 4.7 | 12.2 | |||||
304L | 113 | 1.2 | 6.2 | 9.2 | 12.2 | 7.0 | 17.8 | 28.6 | 7.0 | 17.8 | |||||
176 | 113 | 1.2 | 6.2 | 9.2 | 12.2 | 7.0 | 17.8 | 28.6 | 7.0 | 17.8 | |||||
执行机构DA5系列 | 弹簧数量 | 弹簧数量 | |||||||||||||
4 | 6 | 8 | 2 | 2 | 2 | 4 | 4 | ||||||||
公称通径DN(mm) | 最大行程(mm) | 执行机构 尺寸参数 | Cv | 阀座直径 (mm) | bar | bar | bar | 供气压力(bar) | |||||||
3.0 | 4.5 | 6.0 | 4.5 | 6.0 | |||||||||||
150 6″ | 60 | DA5DR—1XX 40000px2 (248in2) | 445 | 143 | 11.1 | 18.1 | 25.1 | 26.1 | 45.7 | 64.9 | 35.9 | 55.1 | |||
246 | 143 | 11.1 | 18.1 | 25.1 | 26.1 | 45.7 | 64.9 | 35.9 | 55.1 | ||||||
304 | 113 | 16.2 | 26.2 | 36.1 | 37.6 | 65.6 | 93.0 | 51.6 | 79.0 | ||||||
176 | 113 | 16.2 | 26.2 | 36.1 | 37.6 | 65.6 | 93.0 | 51.6 | 79.0 | ||||||
198 | 90 | 26.1 | 41.8 | 57.5 | 59.9 | 103.9 | 147.2 | 81.9 | 125.2 | ||||||
146 | 90 | 26.1 | 41.8 | 57.5 | 59.9 | 103.9 | 147.2 | 81.9 | 125.2 | ||||||
200 8″ | 60 | DA5DR—1XX 40000px2 (248in2) | 527 | 172 | 6.6 | 10.9 | 15.2 | 15.8 | 27.9 | 39.7 | 21.9 | 33.7 | |||
304% | 172 | 6.6 | 10.9 | 15.2 | 15.8 | 27.9 | 39.7 | 21.9 | 33.7 | ||||||
445 | 143 | 11.1 | 18.1 | 25.1 | 26.1 | 45.7 | 64.9 | 35.9 | 55.1 | ||||||
246 | 143 | 11.1 | 18.1 | 25.1 | 26.1 | 45.7 | 64.9 | 35.9 | 55.1 | ||||||
304L | 113 | 16.2 | 26.2 | 36.1 | 37.6 | 65.6 | 93.0 | 51.6 | 79.0 | ||||||
176 | 113 | 16.2 | 26.2 | 36.1 | 37.6 | 65.6 | 93.0 | 51.6 | 79.0 | ||||||
注:1.“*”表示代号为1、2的直压式连接支架(常温),其余为圆螺母压紧式连接支架(常温或高温)。
2. “XX”的代码含义详见DA系列执行机构样本。
表5.2:允许压差(泄漏等级Ⅴ级):
执行机构DA2、3系列 | 作用型式:气开 弹簧数量 | 作用型式:气关 弹簧数量 | |||||||||||||
公称通径DN(mm) | 最大行程(mm) | 执行机构 尺寸参数 | Cv | 阀座直径 (mm) | 3 | 6 | 9 | 12 | 3 | 3 | 3 | 6 | 6 | ||
bar | bar | bar | bar | 供气压力(bar) | |||||||||||
3.0 | 4.5 | 6.0 | 4.5 | 6.0 | |||||||||||
25 1″ | 20 | DA2DR—3XX 8000px2 (50in2) | 11.7 | 24 | - | 20.3 | - | - | 20.3 | 126.4 | 160.0 | 20.3 | 126.4 | ||
8.2 | 24 | - | 20.3 | - | - | 20.3 | 126.4 | 160.0 | 20.3 | 126.4 | |||||
4.7 | 24 | - | 20.3 | - | - | 20.3 | 126.4 | 160.0 | 20.3 | 126.4 | |||||
40 1 1/2″ | 20 | DA2DR—2*(3)XX 8000px2 (50in2) | 31 | 37 | - | - | - | - | - | 43.7 | 88.4 | - | 43.7 | ||
21 | 37 | - | - | - | - | - | 43.7 | 88.4 | - | 43.7 | |||||
19 | 37 | - | - | - | - | - | 43.7 | 88.4 | - | 43.7 | |||||
13 | 37 | - | - | - | - | - | 43.7 | 88.4 | - | 43.7 | |||||
50 2″ | 30 | DA2DR—5XX 8000px2 (50in2) | 50 | 48 | - | - | - | - | - | 21.2 | 47.7 | - | 21.2 | ||
41 | 48 | - | - | - | - | - | 21.2 | 47.7 | - | 21.2 | |||||
31 | 37 | - | - | - | - | - | 43.7 | 88.4 | - | 43.7 | |||||
25 | 37 | - | - | - | - | - | 43.7 | 88.4 | - | 43.7 | |||||
DA3DR—1XX 18000px2 (111in2) | 50 | 48 | - | 23.4 | 40.0 | 56.6 | 27.8 | 87.5 | 147.2 | 27.8 | 87.5 | ||||
41 | 48 | - | 23.4 | 40.0 | 56.6 | 27.8 | 87.5 | 147.2 | 27.8 | 87.5 | |||||
31 | 37 | 0.9 | 47.4 | 75.3 | 103.2 | 54.9 | 155.4 | 160.0 | 54.9 | 155.4 | |||||
25 | 37 | 0.9 | 47.4 | 75.3 | 103.2 | 54.9 | 155.4 | 160.0 | 54.9 | 155.4 | |||||
80 3″ | 30 | DA2DR—5XX 8000px2 (50in2) | 94 | 73 | - | - | - | - | - | 4.5 | 15.9 | - | 4.5 | ||
65% | 73 | - | - | - | - | - | 4.5 | 15.9 | - | 4.5 | |||||
70 | 62 | - | - | - | - | - | 9.1 | 25.0 | - | 9.1 | |||||
50 | 62 | - | - | - | - | - | 9.1 | 25.0 | - | 9.1 | |||||
65L | 48 | - | - | - | - | - | 21.2 | 47.7 | - | 21.2 | |||||
44 | 48 | - | - | - | - | - | 21.2 | 47.7 | - | 21.2 | |||||
DA3DR—1XX 18000px2 (111in2) | 94 | 73 | - | 5.4 | 12.6 | 19.8 | 7.3 | 33.2 | 59.0 | 7.3 | 33.2 | ||||
65% | 73 | - | 5.4 | 12.6 | 19.8 | 7.3 | 33.2 | 59.0 | 7.3 | 33.2 | |||||
70 | 62 | - | 10.4 | 20.3 | 30.3 | 13.0 | 48.8 | 84.6 | 13.0 | 48.8 | |||||
50 | 62 | - | 10.4 | 20.3 | 30.3 | 13.0 | 48.8 | 84.6 | 13.0 | 48.8 | |||||
65L | 48 | - | 23.4 | 40.0 | 56.6 | 27.8 | 87.5 | 147.2 | 27.8 | 87.5 | |||||
44 | 48 | - | 23.4 | 40.0 | 56.6 | 27.8 | 87.5 | 147.2 | 27.8 | 87.5 | |||||
100 4″ | 30 | DA2DR—5XX 8000px2 (50in2) | 129 | 90 | - | - | - | - | - | 0.8 | 8.4 | - | 0.8 | ||
80 | 90 | - | - | - | - | - | 0.8 | 8.4 | - | 0.8 | |||||
94 | 73 | - | - | - | - | - | 4.5 | 15.9 | - | 4.5 | |||||
65 | 73 | - | - | - | - | - | 4.5 | 15.9 | - | 4.5 | |||||
70 | 62 | - | - | - | - | - | 9.1 | 25.0 | - | 9.1 | |||||
50 | 62 | - | - | - | - | - | 9.1 | 25.0 | - | 9.1 | |||||
DA3DR—1XX 18000px2 (111in2) | 129 | 90 | - | 1.5 | 6.2 | 10.9 | 2.7 | 19.7 | 36.7 | 2.7 | 19.7 | ||||
80 | 90 | - | 1.5 | 6.2 | 10.9 | 2.7 | 19.7 | 36.7 | 2.7 | 19.7 | |||||
94 | 73 | - | 5.4 | 12.6 | 19.8 | 7.3 | 33.2 | 59.0 | 7.3 | 33.2 | |||||
65 | 73 | - | 5.4 | 12.6 | 19.8 | 7.3 | 33.2 | 59.0 | 7.3 | 33.2 | |||||
70 | 62 | - | 10.4 | 20.3 | 30.3 | 13.0 | 48.8 | 84.6 | 13.0 | 48.8 | |||||
50 | 62 | - | 10.4 | 20.3 | 30.3 | 13.0 | 48.8 | 84.6 | 13.0 | 48.8 | |||||
150 6″ | 60 | DA3DR—2XX 18000px2 (111in2) | 445 | 143 | - | - | 0.3 | 2.4 | - | 6.3 | 13.8 | - | 6.3 | ||
246 | 143 | - | - | 0.3 | 2.4 | - | 6.3 | 13.8 | - | 6.3 | |||||
304 | 113 | - | - | 2.1 | 5.1 | - | 10.7 | 21.5 | - | 10.7 | |||||
176 | 113 | - | - | 2.1 | 5.1 | - | 10.7 | 21.5 | - | 10.7 | |||||
198 | 90 | - | 1.5 | 6.2 | 10.9 | 2.7 | 19.7 | 36.7 | 2.7 | 19.7 | |||||
146 | 90 | - | 1.5 | 6.2 | 10.9 | 2.7 | 19.7 | 36.7 | 2.7 | 19.7 | |||||
200 8″ | 60 | DA3DR—2XX 18000px2 (111in2) | 527 | 172 | - | - | - | 0.2 | - | 2.6 | 7.3 | - | 2.6 | ||
304% | 172 | - | - | - | 0.2 | - | 2.6 | 7.3 | - | 2.6 | |||||
445 | 143 | - | - | 0.3 | 2.4 | - | 6.3 | 13.8 | - | 6.3 | |||||
246 | 143 | - | - | 0.3 | 2.4 | - | 6.3 | 13.8 | - | 6.3 | |||||
304L | 113 | - | - | 2.1 | 5.1 | - | 10.7 | 21.5 | - | 10.7 | |||||
176 | 113 | - | - | 2.1 | 5.1 | - | 10.7 | 21.5 | - | 10.7 | |||||
执行机构DA5系列 | 弹簧数量 | 弹簧数量 | |||||||||||||
4 | 6 | 8 | 2 | 2 | 2 | 4 | 4 | ||||||||
公称通径DN(mm) | 最大行程(mm) | 执行机构尺寸参数 | Cv | 阀座直径 (mm) | bar | bar | bar | 供气压力(bar) | |||||||
3.0 | 4.5 | 6.0 | 4.5 | 6.0 | |||||||||||
150 6″ | 60 | DA5DR—1XX 40000px2 (248in2) | 445 | 143 | 5.2 | 12.2 | 19.2 | 20.2 | 39.8 | 59.0 | 30.0 | 49.2 | |||
246 | 143 | 5.2 | 12.2 | 19.2 | 20.2 | 39.8 | 59.0 | 30.0 | 49.2 | ||||||
304 | 113 | 9.1 | 19.1 | 29.1 | 30.6 | 58.5 | 85.9 | 44.5 | 72.0 | ||||||
176 | 113 | 9.1 | 19.1 | 29.1 | 30.6 | 58.5 | 85.9 | 44.5 | 72.0 | ||||||
198 | 90 | 17.2 | 32.9 | 48.7 | 51.0 | 95.0 | 138.3 | 73.0 | 116.3 | ||||||
146 | 90 | 17.2 | 32.9 | 48.7 | 51.0 | 95.0 | 138.3 | 73.0 | 116.3 | ||||||
200 8″ | 60 | DA5DR—1XX 40000px2 (248in2) | 527 | 172 | 1.9 | 6.2 | 10.5 | 11.2 | 23.3 | 35.1 | 17.2 | 29.1 | |||
304% | 172 | 1.9 | 6.2 | 10.5 | 11.2 | 23.3 | 35.1 | 17.2 | 29.1 | ||||||
445 | 143 | 5.2 | 12.2 | 19.2 | 20.2 | 39.8 | 59.0 | 30.0 | 49.2 | ||||||
246 | 143 | 5.2 | 12.2 | 19.2 | 20.2 | 39.8 | 59.0 | 30.0 | 49.2 | ||||||
304L | 113 | 9.1 | 19.1 | 29.1 | 30.6 | 58.5 | 85.9 | 44.5 | 72.0 | ||||||
176 | 113 | 9.1 | 19.1 | 29.1 | 30.6 | 58.5 | 85.9 | 44.5 | 72.0 | ||||||
注:1.“*”表示代号为1、2的直压式连接支架(常温),其余为圆螺母压紧式连接支架(常温或高温)。
2. “XX”的代码含义详见DA系列执行机构样本。

表6.1:外形(mm)尺寸及重量(Kg)(DN25~DN200,DIN PN63/100/160/250)
阀体法兰尺寸符合 DIN 2546/2547/2548 | |||||||||
阀体组件 | DN | 25 | 40 | 50 | 80 | 100 | 150 | 200 | |
VBL | PN63/PN100/PN160 | 230 | 260 | 300 | 380 | 430 | 550 | 700* | |
PN250 | 260 | 300 | 350 | 450 | 520 | 700 | 800 | ||
VH | <300℃ | 132 | 159 | 178 | 220 | 255 | 342 | 357 | |
≥300℃ | 167 | 239 | 243 | 300 | 332 | 402 | 447 | ||
VU | 3法兰 | 68 | 103 | 113 | 153 | 178 | 228 | 260 | |
4法兰 |
| 174 | 219 | 254 | 314 | 366 | |||
执行机构
| φA | DA2 | 270 |
| |||||
DA3 |
| 400 | |||||||
DA5 |
| 596 | |||||||
AH | DA2 | 361 |
| ||||||
DA3 |
| 489 | 625 | ||||||
DA5 |
| 840 | |||||||
AHV | DA2 | 508 |
| ||||||
DA3 |
| 657 | 888 | ||||||
B | 130 | 150 | 200 | ||||||
重量 | DA2 | 34 | 42 | 72 | 101 | 136 |
| ||
DA3 |
| 98 | 127 | 162 | 317 | 607 | |||
DA5 |
| 460 | 750 | ||||||
注:1.重量=阀体组件+执行机构(不含手轮机构) 2.“*”不遵循 DIN 3202-F2 | |||||||||
表6.2:外形尺寸(mm)及重量(Kg)(1″~ 8″,ANSI600/900/1500)
阀体法兰尺寸符合 ANSI B16.5 CLASS 600/900/1500 RF/RTJ 阀体法兰距符合ASME B16.10 CLASS600/900/1500RF/RTJ及IEC60534-3-1 | |||||||||
阀体组件 | DN | 1″ | 1 1/2″ | 2″ | 3″ | 4″ | 6″ | 8″ | |
VBL Cl. 600 | RF | 216 | 241 | 292 | 356 | 432 | 559 | 660 | |
RTJ | 216 | 241 | 295 | 359 | 435 | 562 | 664 | ||
VBL Cl. 900 | RF | 254 | 305 | 368 | 381 | 457 | 610 | 737 | |
RTJ | 254 | 305 | 372 | 384 | 460 | 613 | 740 | ||
VBL Cl. 1500 | RF | 254 | 305 | 368 | 470 | 546 | 705 | 832 | |
RTJ | 254 | 305 | 371 | 473 | 549 | 711 | 841 | ||
VH | <300℃ | 132 | 159 | 178 | 220 | 255 | 342 | 357 | |
≥300℃ | 167 | 239 | 243 | 300 | 332 | 402 | 447 | ||
VU | 3法兰 | 68 | 103 | 113 | 153 | 178 | 228 | 260 | |
4法兰 |
| 174 | 219 | 254 | 314 | 366 | |||
执行机构
| φA | DA2 | 270 |
| |||||
DA3 |
| 400 | |||||||
DA5 |
| 596 | |||||||
AH | DA2 | 361 |
| ||||||
DA3 |
| 489 | 625 | ||||||
DA5 |
| 840 | |||||||
AHV | DA2 | 508 |
| ||||||
DA3 |
| 657 | 888 | ||||||
B | 130 | 150 | 200 | ||||||
重量 | DA2 | 34 | 42 | 72 | 101 | 136 |
| ||
DA3 |
| 98 | 127 | 162 | 317 | 607 | |||
DA5 |
| 460 | 750 | ||||||
注:重量=阀体组件+执行机构(不含手轮机构) | |||||||||

