■ 概要
CAX45 6X压力平衡抛物面阀芯单座笼式控制阀结构紧凑,具有金属密封及软密封结构,配以各种高性能复合及金属压力平衡密封环,密封性能优异。衬套及套筒双导向保证阀芯能在流体偏置力作用下能运行平稳可靠。因具有流体压力平衡结构,所以只需用较小的操作力便可达到稳定的调节目的。
抛物柱面阀芯结构能够保证可调范围广,流量特性曲线精度高且不会存在卡死现象。坚固的套筒可改善内部流体环境,防止闪蒸及空化的发生及破坏。
CAX45 6X压力平衡抛物面阀芯单座笼式控制阀性能卓越,适应于大压差、大温度变化以及含有颗粒杂质的流体工况。
■ 标准规格
阀体部分
型 式:铸造球型阀
公称通径:CAX45X: DN80、100;CAX46X:DN125、150、200、250、300、350、400
公称压力:ANSI 150、300、600
DIN PN16、25、40、63、100
JIS 10K、20K、30K、40
GB PN1.6、2.5、4.0、6.3、10.0MPa
连接方式:法兰型 ANSI B16.5 RF、RTJ
GB/T9113 RF、FM
焊接型 ANSI B16.5 对接焊BW
法 兰 距:CL150RF、JIS10K、PN1.6MPa符合IEC60534.3-1标准系列37(等同于ISO5752标准系列37)
CL300RF、JIS20K、JIS30K、PN4.0MPa符合IEC60534.3-1标准系列38(等同于ISO5752标准系列38)
CL150/300RTJ符合ASME B16.10 CLASS 150/300RTJ
DIN PN16、25、40符合DIN3202-F1(等同于ISO5752标准系列1)
CL600、PN63、PN100 :基本系列 39。
请参阅表6.1~6.2及《C·H·R 三大系列控制阀综合样本》
阀体材质:请参阅表1
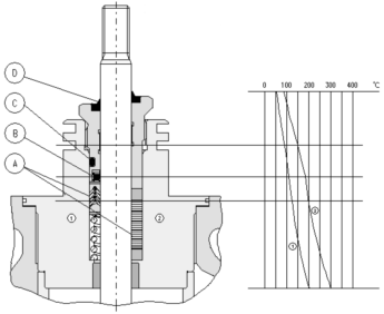
使用温度、压力范围请参阅图3
上阀盖形式:标准型…………-46~200℃;200℃~300℃
散热片型…………300℃~530℃
(请注意各种材料的使用温度、压力范围)
填 料: V型组合填料、石墨组合填料、石墨填料等
使用温度范围请参阅表2、图2
密 封 垫:缠绕垫圈(聚四氟乙烯+316、柔性石墨+316)
石墨夹金属垫圈(石墨+316、石墨+304)
阀内件
阀芯形式:抛物面阀芯
流量特性:等百分比、线性 (请参阅图4)
阀内件材质:标准材质组合及使用温度范围请参阅表3
执行机构
形 式:DA系列多弹簧薄膜式
弹簧范围:请参阅表5.1~5.2
供气压力:最大6bar
气源接口:G1/8(DA1/DA2)、G1/4(DA3/DA4)、G3/4(DA5)
环境温度:-20℃~+80℃
标准规格:请参阅表5.1~5.2
选配附件
定位器、过滤减压阀、电磁阀、限位开关、
阀位变送器、手轮机构、快速排气阀、速度控制阀、气动保位阀等
整机作用方式
气开式、气关式
整机性能
可 调 比:50:1
阀座泄漏量:金属密封符合ANSI B16.104 Ⅳ级、Ⅴ级;
软密封符合ANSI B16.104 Ⅵ级
回 差:3%(不带定位器)
1%(带定位器)
线 性:±5%(不带定位器)
±1%(带定位器)
额定Cv值:请参阅表4
允许压差:请参阅表5.1~5.2
外形尺寸:请参阅图5;表6.1~6.2
产品重量:请参阅表6.1~6.2
■ 特殊规格:(按用户要求制造,具体内容如下)
● 特殊检查
流量特性检查、材料检查(试验报告)、低温试验、蒸气试验、无损检测
●禁铜处理 ●完全除油、除水处理
●指定色涂层 ●特殊空气配管和特殊接头
●防砂、防尘型 ●防强腐蚀型
●真空工作条件用 ●接触大气部分SUS不锈钢螺栓、螺母
●寒带地区用 ●热带地区用
表1:阀体材质
中国 | 美国 | 德国 | 温度范围 |
ZG230-450 WCB | A216 WCB(ASTM) | 1.0619 GP240GH | -10℃~400℃ |
ZG0Cr18Ni9 | A351 CF8(ASTM) | 1.4308 G-X6CrNi18 9 | -200℃~530℃ |
ZG0Cr18Ni12Mo2Ti | A351 CF8M(ASTM) | 1.4408 G-X6CrNiMo18 10 | -200℃~530℃ |
ZG0Cr18Ni12Mo2Nb | — | 1.4581 G-X5CrNiMoNb18 10 | -200℃~530℃ |
| A217 WC6(ASTM) | 1.7357 GS-17CrMo5 5 | -10℃~450℃ |
| A217 WC9(ASTM) | 1.7379 GS-18CrMo9 10 | -10℃~450℃ |
表2:填料的使用温度范围
填料类型 (A所示) | 代码 | 微密封件材质(B所示) | O型圈材质(C所示) | 防尘圈材质(D所示) | 温度范围 | 上阀盖 型式 | 备注 说明 |
PTFE V型填料 | 1 | EPDM(三元乙丙橡胶) | EPDM(三元乙丙橡胶) | NBR (丁腈橡胶) | -25℃~180℃ | 标准型 | (交变载荷)带压缩弹簧 |
2 | VITON(氟橡胶) | VITON (氟橡胶) | -25℃~200℃ | ||||
石墨+因科镍填料 | 3 | — | — | NBR(丁腈橡胶) VITON(氟橡胶) | -20℃~400℃ | 标准型/带散热片型 | 一般 场合 |
纯石墨填料 (密度1.2) | 4 | — | — | VITON(氟橡胶) | -196℃~530℃ | 标准型/带散热片型 | 高、低温场合 |
石墨+PTFE | 6 | — | — | NBR(丁腈橡胶) | -196℃~200℃ | 标准型/ 加长型 | 低温 场合 |
注:选择温度范围时,如无特殊要求,应就近选择。
图2
图3:温压曲线
表3:阀内件标准材质组合及使用温度范围
抛物面阀芯 | 阀座 | 阀座密封形式 | 适用温度 |
0Cr17Ni12Mo2(1.4571) | 0Cr17Ni12Mo2(1.4571) | 金属密封 | -46℃~530℃ |
3Cr17NiMo(1.4122)硬化处理 | 2Cr13(1.4021) 硬化处理 | 金属密封 | -46℃~530℃ |
9Cr18MoV(1.4112)硬化处理 | 9Cr18MoV(1.4112)硬化处理 | 金属密封 | -46℃~530℃ |
0Cr17Ni12Mo2(1.4571) | 0Cr17Ni12Mo2(1.4571) | PTFE/EPDM | -50℃~140℃ |
3Cr17NiMo(1.4122)硬化处理 | 2Cr13(1.4021) | PTFE/EPDM | -50℃~140℃ |
硬化处理包括:镀硬铬、堆焊Stellite合金、淬火处理、渗氮处理、喷涂钛化钨等。
表4:额定Cv值
阀座类型 | 金属阀座 | 软阀座 | |||||||||||||
流量特性 | 线性 | 等百分比 | 快开 | 线性 | 等百分比 | 快开 | |||||||||
公称通径 | 行程 | Cv1 | Cv2 | Cv3 | Cv1 | Cv2 | Cv3 | Cv1 | Cv1 | Cv2 | Cv3 | Cv1 | Cv2 | Cv3 | Cv1 |
80 | 30 | 116 | 73 | 46 | 116 | 73 | 46 | 116 | 116 | 73 | 46 | 116 | 73 | 46 | 116 |
100 | 186 | 116 | 73 | 186 | 116 | 73 | 186 | 186 | 116 | 73 | 186 | 116 | 73 | 186 | |
150 | 60 | 445 | 304 | 176 | 445 | 304 | 176 | 445 | 445 | 304 |
| 445 | 304 |
| 445 |
200 | 761 | 445 | 304 | 761 | 445 | 304 | 761 | 761 |
| 761 |
| 761 | |||
250 | 100 | 1053 | 761 | 445 | 1053 | 761 | 445 | 1053 | 1053 | 1053 | 1053 | ||||
300 | 1521 | 1053 | 761 | 1521 | 1053 | 761 | 1521 | 1521 | 1521 | 1521 | |||||
350 | 2106 | 1521 | 1053 | 2106 | 1521 | 1053 | 2106 | 2106 | 2106 | 2106 | |||||
400 | 120 | 2925 | 2106 | 1521 | 2925 | 2106 | 1521 | 2925 | 2925 | 2925 | 2925 | ||||
百分比特性(% 金属阀座) 线性特性(L 金属阀座)
等百分比特性(% 软阀座) 线性特性(L 软阀座)
表5.1:允许压差(泄漏等级Ⅳ级):
执行机构DA2、3系列 | 作用型式;气开 弹簧数量 | 作用型式;气关 弹簧数量 | |||||||||||||
公称通径DN(mm) | 最大行程(mm) | 执行机构 尺寸参数 | Cv | 阀座 直径 (mm) | 3 | 6 | 9 | 12 | 3 | 3 | 3 | 6 | 6 | ||
bar | bar | bar | bar | 供气压力(bar) | |||||||||||
3.0 | 4.5 | 6.0 | 4.5 | 6.0 | |||||||||||
80 3″ | 30 | DA2DR—5XX 8000px2 (50in2) | 116 | 80 | - | 50.0 | - | - | 50.0 | 50.0 | 50.0 | 50.0 | 50.0 | ||
73 | 80 | - | 50.0 | - | - | 50.0 | 50.0 | 50.0 | 50.0 | 50.0 | |||||
46 | 80 | - | 50.0 | - | - | 50.0 | 50.0 | 50.0 | 50.0 | 50.0 | |||||
DA3DR—1XX 18000px2 (111in2) | 116 | 80 | 50.0 | 50.0 | 50.0 | 50.0 | 50.0 | 50.0 | 50.0 | 50.0 | 50.0 | ||||
73 | 80 | 50.0 | 50.0 | 50.0 | 50.0 | 50.0 | 50.0 | 50.0 | 50.0 | 50.0 | |||||
46 | 80 | 50.0 | 50.0 | 50.0 | 50.0 | 50.0 | 50.0 | 50.0 | 50.0 | 50.0 | |||||
100 4″ | 30 | DA2DR—5XX 8000px2 (50in2) | 186 | 100 | - | 50.0 | - | - | 50.0 | 50.0 | 50.0 | 50.0 | 50.0 | ||
116 | 100 | - | 50.0 | - | - | 50.0 | 50.0 | 50.0 | 50.0 | 50.0 | |||||
73 | 100 | - | 50.0 | - | - | 50.0 | 50.0 | 50.0 | 50.0 | 50.0 | |||||
DA3DR—1XX 18000px2 (111in2) | 186 | 100 | 50.0 | 50.0 | 50.0 | 50.0 | 50.0 | 50.0 | 50.0 | 50.0 | 50.0 | ||||
116 | 100 | 50.0 | 50.0 | 50.0 | 50.0 | 50.0 | 50.0 | 50.0 | 50.0 | 50.0 | |||||
73 | 100 | 50.0 | 50.0 | 50.0 | 50.0 | 50.0 | 50.0 | 50.0 | 50.0 | 50.0 | |||||
150 6″ | 60 | DA3DR—2XX 18000px2 (111in2) | 445 | 143 | 32.9 | 50.0 | 50.0 | 50.0 | 50.0 | 50.0 | 50.0 | 50.0 | 50.0 | ||
304 | 143 | 32.9 | 50.0 | 50.0 | 50.0 | 50.0 | 50.0 | 50.0 | 50.0 | 50.0 | |||||
176 | 143 | 32.9 | 50.0 | 50.0 | 50.0 | 50.0 | 50.0 | 50.0 | 50.0 | 50.0 | |||||
200 8″ | 60 | DA3DR—2XX 18000px2 (111in2) | 761 | 172 | - | 50.0 | 50.0 | 50.0 | 50.0 | 50.0 | 50.0 | 50.0 | 50.0 | ||
445 | 172 | - | 50.0 | 50.0 | 50.0 | 50.0 | 50.0 | 50.0 | 50.0 | 50.0 | |||||
304 | 172 | - | 50.0 | 50.0 | 50.0 | 50.0 | 50.0 | 50.0 | 50.0 | 50.0 | |||||
执行机构DA5系列 | 弹簧数量 | 弹簧数量 | |||||||||||||
公称通径DN(mm) | 最大行程(mm) | 执行机构 尺寸参数 | Cv | 阀座 直径 (mm) | 4 | 6 | 8 | 2 | 2 | 2 | 4 | 4 | |||
bar | bar | bar | 供气压力 | ||||||||||||
3.0 | 4.5 | 6.0 | 4.5 | 6.0 | |||||||||||
150 6″ | 60 | DA5DR—1XX 40000px2 (248in2) | 445 | 143 | 50.0 | 50.0 | 50.0 | 50.0 | 50.0 | 50.0 | 50.0 | 50.0 | |||
304 | 143 | 50.0 | 50.0 | 50.0 | 50.0 | 50.0 | 50.0 | 50.0 | 50.0 | ||||||
176 | 143 | 50.0 | 50.0 | 50.0 | 50.0 | 50.0 | 50.0 | 50.0 | 50.0 | ||||||
200 8″ | 60 | DA5DR—1XX 40000px2 (248in2) | 761 | 172 | 50.0 | 50.0 | 50.0 | 50.0 | 50.0 | 50.0 | 50.0 | 50.0 | |||
445 | 172 | 50.0 | 50.0 | 50.0 | 50.0 | 50.0 | 50.0 | 50.0 | 50.0 | ||||||
304 | 172 | 50.0 | 50.0 | 50.0 | 50.0 | 50.0 | 50.0 | 50.0 | 50.0 | ||||||
250 10″ | 100 | DA5DR—2XX 40000px2 (248in2) | 1053 | 220 | 50.0 | 50.0 | 50.0 | 50.0 | 50.0 | 50.0 | 50.0 | 50.0 | |||
761 | 220 | 50.0 | 50.0 | 50.0 | 50.0 | 50.0 | 50.0 | 50.0 | 50.0 | ||||||
445 | 220 | 50.0 | 50.0 | 50.0 | 50.0 | 50.0 | 50.0 | 50.0 | 50.0 | ||||||
300 12″ | 100 | DA5DR—2XX 40000px2 (248in2) | 1521 | 282 | 50.0 | 50.0 | 50.0 | 50.0 | 50.0 | 50.0 | 50.0 | 50.0 | |||
1053 | 282 | 50.0 | 50.0 | 50.0 | 50.0 | 50.0 | 50.0 | 50.0 | 50.0 | ||||||
761 | 282 | 50.0 | 50.0 | 50.0 | 50.0 | 50.0 | 50.0 | 50.0 | 50.0 | ||||||
350 14″ | 100 | DA5DR—2XX 40000px2 (248in2) | 2106 | 313 | 50.0 | 50.0 | 50.0 | 50.0 | 50.0 | 50.0 | 50.0 | 50.0 | |||
1521 | 313 | 50.0 | 50.0 | 50.0 | 50.0 | 50.0 | 50.0 | 50.0 | 50.0 | ||||||
1053 | 313 | 50.0 | 50.0 | 50.0 | 50.0 | 50.0 | 50.0 | 50.0 | 50.0 | ||||||
400 16″ | 120 | DA5DR—2XX 40000px2 (248in2) | 2925 | 400 | - | 47.1 | 50.0 | 50.0 | 50.0 | 50.0 | 50.0 | 50.0 | |||
2106 | 400 | - | 47.1 | 50.0 | 50.0 | 50.0 | 50.0 | 50.0 | 50.0 | ||||||
1521 | 400 | - | 47.1 | 50.0 | 50.0 | 50.0 | 50.0 | 50.0 | 50.0 | ||||||
注:1.“*”表示代号为1、2的直压式连接支架(常温),其余为圆螺母压紧式连接支架(常温或高温)。
2. “XX”的代码含义详见DA系列执行机构样本。
表5.2:允许压差(泄漏等级Ⅵ级):
执行机构DA2、3系列 | 作用型式;气开 弹簧数量 | 作用型式;气关 弹簧数量 | |||||||||||||
公称通径DN(mm) | 最大行程(mm) | 执行机构 尺寸参数 | Cv | 阀座 直径 (mm) | 3 | 6 | 9 | 12 | 3 | 3 | 3 | 6 | 6 | ||
bar | bar | bar | bar | 供气压力(bar) | |||||||||||
3.0 | 4.5 | 6.0 | 4.5 | 6.0 | |||||||||||
80 3″ | 30 | DA2DR—5XX 8000px2 (50in2) | 116 | 80 | - | 4.8 | - | - | 4.8 | 35.2 | 50.0 | 4.8 | 35.2 | ||
73 | 80 | - | 4.8 | - | - | 4.8 | 35.2 | 50.0 | 4.8 | 35.2 | |||||
46 | 80 | - | 4.8 | - | - | 4.8 | 35.2 | 50.0 | 4.8 | 35.2 | |||||
DA3DR—1XX 18000px2 (111in2) | 116 | 80 | 6.1 | 37.8 | 50.0 | 50.0 | 42.8 | 50.0 | 50.0 | 42.8 | 50.0 | ||||
73 | 80 | 6.1 | 37.8 | 50.0 | 50.0 | 42.8 | 50.0 | 50.0 | 42.8 | 50.0 | |||||
46 | 80 | 6.1 | 37.8 | 50.0 | 50.0 | 42.8 | 50.0 | 50.0 | 42.8 | 50.0 | |||||
100 4″ | 30 | DA2DR—5XX 8000px2 (50in2) | 186 | 100 | - | - | - | - | - | 25.2 | 50.0 | - | 25.2 | ||
116 | 100 | - | - | - | - | - | 25.2 | 50.0 | - | 25.2 | |||||
73 | 100 | - | - | - | - | - | 25.2 | 50.0 | - | 25.2 | |||||
DA3DR—1XX 18000px2 (111in2) | 186 | 100 | 0.7 | 27.4 | 43.4 | 50.0 | 31.6 | 50.0 | 50.0 | 31.6 | 50.0 | ||||
116 | 100 | 0.7 | 27.4 | 43.4 | 50.0 | 31.6 | 50.0 | 50.0 | 31.6 | 50.0 | |||||
73 | 100 | 0.7 | 27.4 | 43.4 | 50.0 | 31.6 | 50.0 | 50.0 | 31.6 | 50.0 | |||||
150 6″ | 60 | DA3DR—2XX 18000px2 (111in2) | 445 | 143 | - | 7.9 | 14.9 | 22.0 | 9.8 | 35.1 | 50.0 | 9.8 | 35.1 | ||
304 | 143 | - | 7.9 | 14.9 | 22.0 | 9.8 | 35.1 | 50.0 | 9.8 | 35.1 | |||||
176 | 143 | - | 7.9 | 14.9 | 22.0 | 9.8 | 35.1 | 50.0 | 9.8 | 35.1 | |||||
200 8″ | 60 | DA3DR—2XX 18000px2 (111in2) | 761 | 172 | - | 3.3 | 11.5 | 19.7 | 5.5 | 34.9 | 50.0 | 5.5 | 34.9 | ||
445 | 172 | - | 3.3 | 11.5 | 19.7 | 5.5 | 34.9 | 50.0 | 5.5 | 34.9 | |||||
304 | 172 | - | 3.3 | 11.5 | 19.7 | 5.5 | 34.9 | 50.0 | 5.5 | 34.9 | |||||
执行机构DA5系列 | 弹簧数量 | 弹簧数量 | |||||||||||||
公称通径DN(mm) | 最大行程(mm) | 执行机构 尺寸参数 | Cv | 阀座 直径 (mm) | 4 | 6 | 8 | 2 | 2 | 2 | 4 | 4 | |||
bar | bar | bar | 供气压力 | ||||||||||||
3.0 | 4.5 | 6.0 | 4.5 | 6.0 | |||||||||||
150 6″ | 60 | DA5DR—1XX 40000px2 (248in2) | 445 | 143 | 31.3 | 50.0 | 50.0 | 50.0 | 50.0 | 50.0 | 50.0 | 50.0 | |||
304 | 143 | 31.3 | 50.0 | 50.0 | 50.0 | 50.0 | 50.0 | 50.0 | 50.0 | ||||||
176 | 143 | 31.3 | 50.0 | 50.0 | 50.0 | 50.0 | 50.0 | 50.0 | 50.0 | ||||||
200 8″ | 60 | DA5DR—1XX 40000px2 (248in2) | 761 | 172 | 30.6 | 50.0 | 50.0 | 50.0 | 50.0 | 50.0 | 50.0 | 50.0 | |||
445 | 172 | 30.6 | 50.0 | 50.0 | 50.0 | 50.0 | 50.0 | 50.0 | 50.0 | ||||||
304 | 172 | 30.6 | 50.0 | 50.0 | 50.0 | 50.0 | 50.0 | 50.0 | 50.0 | ||||||
250 10″ | 100 | DA5DR—2XX 40000px2 (248in2) | 1053 | 220 | 16.2 | 36.9 | 50.0 | 45.6 | 50.0 | 50.0 | 50.0 | 50.0 | |||
761 | 220 | 16.2 | 36.9 | 50.0 | 45.6 | 50.0 | 50.0 | 50.0 | 50.0 | ||||||
445 | 220 | 16.2 | 36.9 | 50.0 | 45.6 | 50.0 | 50.0 | 50.0 | 50.0 | ||||||
300 12″ | 100 | DA5DR—2XX 40000px2 (248in2) | 1521 | 282 | 6.6 | 22.9 | 38.4 | 29.8 | 50.0 | 50.0 | 42.7 | 50.0 | |||
1053 | 282 | 6.6 | 22.9 | 38.4 | 29.8 | 50.0 | 50.0 | 42.7 | 50.0 | ||||||
761 | 282 | 6.6 | 22.9 | 38.4 | 29.8 | 50.0 | 50.0 | 42.7 | 50.0 | ||||||
350 14″ | 100 | DA5DR—2XX 40000px2 (248in2) | 2106 | 313 | 1.7 | 16.0 | 29.5 | 22.0 | 50.0 | 50.0 | 33.2 | 50.0 | |||
1521 | 313 | 1.7 | 16.0 | 29.5 | 22.0 | 50.0 | 50.0 | 33.2 | 50.0 | ||||||
1053 | 313 | 1.7 | 16.0 | 29.5 | 22.0 | 50.0 | 50.0 | 33.2 | 50.0 | ||||||
400 16″ | 120 | DA5DR—2XX 40000px2 (248in2) | 2925 | 400 | - | - | 0.8 | 3.5 | 19.3 | 35.1 | 6.5 | 22.3 | |||
2106 | 400 | - | - | 0.8 | 3.5 | 19.3 | 35.1 | 6.5 | 22.3 | ||||||
1521 | 400 | - | - | 0.8 | 3.5 | 19.3 | 35.1 | 6.5 | 22.3 | ||||||
注:1.“*”表示代号为1、2的直压式连接支架(常温),其余为圆螺母压紧式连接支架(常温或高温)。
2. “XX”的代码含义详见DA系列执行机构样本。
图5 DN80~400(3″~16″)
表6.1: 外形尺寸(mm)及重量(Kg)(DN80~DN400,DIN PN16/25/40)
|
| 阀体法兰尺寸符合 DIN 2543/2544/2545 法兰距符合 DIN 3202-F1 | ||||||||||
|
| 阀体组件 | DN | 80 | 100 | 150 | 200 | 250 | 300 | 350 | 400 | |
| VBL | 310 | 350 | 480 | 600 | 730 | 850 | 980 | 1100 | |||
| VH | <300℃ | 196 | 221 | 260 | 292 | 357 | 394 | 462 | 518 | ||
| ≥300℃ | 261 | 286 | 355 | 407 | 506 | 543 | 611 | 667 | |||
| VU | 106 | 136 | 189 | 239 | 305 | 335 | 395 | 443 | |||
| 执行机构
| φA | DA2 | 270 |
|
|
|
|
|
| ||
| DA3 | 400 |
|
|
|
| ||||||
| DA5 |
|
| 596 | ||||||||
| AH | DA2 | 404 |
|
|
|
|
|
| |||
| DA3 | 489 | 625 |
|
|
|
| |||||
| DA5 |
| 840 | 1010 | 1080 | |||||||
| AHV | DA2 | 551 |
|
|
|
|
| ||||
| DA3 | 651 | 888 |
|
|
|
| |||||
| B | 150 | 200 | 340 | ||||||||
| 重量 | DA2 | 70 | 93 |
|
|
|
|
|
| ||
| DA3 | 96 | 119 | 190 | 250 | 355 | 655 | 745 | 1395 | |||
| DA5 |
|
| 330 | 390 | 450 | 750 | 840 | 1490 | |||
注:重量= 阀体组件+执行机构(不含手轮机构)
表6.2:外形尺寸(mm)及重量(Kg)(3″~ 16″ ANSI150/300)
|
| 阀体法兰尺寸符合 ANSI CLASS 150/300 RF/RTJ; 法兰距符合IEC60534.3-1标准系列37/38 | ||||||||||||
|
| 阀体组件 | DN | 3″ | 4″ | 6″ | 8″ | 10″ | 12″ | 14″ | 16″ | |||
| VBL Cl. 150 | RF | 298 | 352 | 451 | 543 | 673 | 737 | 889 | 1016 | ||||
| RTJ | 311 | 365 | 464 | 556 | 686 | 750 | 902 | 1029 | |||||
| VBL Cl. 300 | RF | 317 | 368 | 473 | 568 | 708 | 775 | 927 | 1057 | ||||
| RTJ | 333 | 384 | 489 | 584 | 724 | 791 | 943 | 1073 | |||||
| VH | <300℃ | 196 | 221 | 260 | 292 | 357 | 394 | 462 | 518 | ||||
| ≥300℃ | 261 | 286 | 355 | 407 | 506 | 543 | 611 | 667 | |||||
| VU | 106 | 136 | 189 | 239 | 305 | 335 | 395 | 443 | |||||
| 执行机构
| φA | DA2 | 270 |
|
|
|
|
|
| ||||
DA3 | 400 |
|
|
|
| |||||||||
| DA5 |
| 596 | |||||||||||
| AH | DA2 | 404 |
|
|
|
|
|
| |||||
DA3 | 489 | 625 |
|
|
|
| ||||||||
| DA5 |
| 840 | 1010 | 1080 | |||||||||
| AHV | DA2 | 551 |
|
|
|
|
|
| |||||
DA3 | 651 | 888 |
|
|
|
| ||||||||
| B | 200 | 340 | |||||||||||
| 重量 | DA2 | 70 | 93 |
|
|
|
|
|
| ||||
DA3 | 96 | 119 | 190 |
|
|
|
|
| ||||||
| DA5 |
|
| 330 | 390 | 450 | 750 | 840 | 1490 | |||||
注:重量= 阀体组件+执行机构(不含手轮机构)

