(本资料内容,如有变更,不再另行通知,敬请谅解)
R系列
RA1X13电动偏心旋转控制阀

RA1X13电动偏心旋转控制阀,由3601R系列角行程全电子式电动执行机构及偏心旋转控制阀阀体组件两大部分构成。偏心旋转控制阀阀芯的回转中心不与旋转轴同心,可减少阀座磨损,延长使用寿命;阀芯后部设有一个导流翼,有利于流体稳定流动,具有优良的稳定性。其次,还有流量大可调范围广的优点。
RA1X13电动偏心旋转控制阀具有结构紧凑,输出力矩大,动作灵敏、平稳,使用寿命长的特点。可广泛应用于石油、化工、电力、冶金、钢铁、造纸、医药、食品、纺织、轻工等工业控制领域。
阀体部分
型号: 偏心旋转控制阀,具体结构请参见图1
公称通径:DN25 、40 、50、80 、100、 150 、200 、250、 300
公称压力:PN1.6 、4.0 、6.3 Mpa ANSI150、300、600
连接型式:无法兰型(对夹式)
法兰型GB PN1.6、2.5、4.0、6.3Mpa 符合HG20596-97M、FM;
ANSI CLASS150、300符合ANSI B16.5 RF及HG/T20615-97
法兰距:对夹式符合EN558:1995基本系列36;
法兰式符合GB/T12221-1989 EN558:1995及ISO5752-1982 基本系列3
阀体材质: 材质对照及适用温度范围请参照表1
上阀盖:与阀体一体铸造
填料: V型组合填料、石墨组合填料、石墨填料等,适用温度范围请参阅表2
填料压盖形式:螺栓压紧式
阀体密封垫圈:金属缠绕垫圈、金属石墨垫圈、锯齿垫圈、平垫圈,具体材质及适用温度范围请参阅表3
油 漆:碳钢壳体表面须按规定喷漆,材质为不锈钢及铜的壳体表面不喷漆。
阀内件
阀芯型式:偏心旋转控制阀(带导流翼)
流量特性:近似等百分比,请参见图3
阀内件材质:标准材质组合及适用温度范围请参照表4
额定行程:全开60°
执行机构
型号名称:3601R系列角行程全电子式电动执行机构,具体结构请参见图2
电源: 单相AC220V±10% 50HZ,三相AC380V±10% 50HZ(如需要三相电源需注明)
耗电功率:A型 50VA,B型 150VA,C型220VA
控制信号:DC4~20mA,DC1~5V(外部配线较远时避免采用DC1~5V)
输出信号:DC4~20mA,DC1~5V(负载电阻500Ω以下)
作用形式:由切换开关变更正反作用形式
最大转角:90°
调整范围:零点±25%,转角20%~100%
环境温度:普通型无空间加热器-10℃~+60℃;有空间加热器-35℃~+60℃;隔爆型-10℃~+60℃
相对湿度:普通型95以下,隔爆型45%~85%
保护等级:IP65、IP66
隔爆等级:Exd II BT4
过载保护:A型和B型可选,C型必配
标准组配:请参见表6
整机性能
动作时间:请参阅表6
阀座泄漏量:金属及非金属硬密封符合ANSI B16.104Ⅳ级、Ⅴ级;非金属软密封符合ANSI B16.104Ⅵ级。
额定Cv值:请参阅表6
线性: ±1.5%
回差: 1.5%
始终点偏差:±2%
可调比: 100:1
允许压差: 请参阅表7.1~7.4
外形尺寸:请参阅图4及 表8
产品重量:请参阅表8
特殊规格(按用户要求制造,具体内容如下)
·特殊检查:
流量特性检查、材料检查、低温试验、蒸气试验、无损检测
·禁铜处理 ·完全禁油、禁水处理
·指定色涂层 ·特殊空气配管和特殊接头
·防砂、防尘型 ·防强腐蚀型
·真空工作条件用 ·接触大气部分不锈钢螺栓、螺母
·寒带地区用 ·热带地区用
·法兰背面加工 ·带排污栓
·双重填料 ·蒸气夹套
·双重填料 ·蒸气夹套
阀体组件结构图
图1 RA1X13电动偏心旋转控制阀阀体组件结构
执行机构结构图

图2 3601R系列角行程全电子式电动执行机构结构图
表1 阀体材质及适用温度范围
中国 | 美国 | 适用温度范围 |
ZG230-450WCB | A 216 WCB ASTM | -10℃~400℃ |
ZG0Cr18Ni9 | A351(CF8)ASTM | -200℃~530℃ |
ZG0Cr18Ni12Mo2Ti | A351(CF8M )ASTM | -200℃~530℃ |
ZG0Cr18Ni12Mo2Nb | — | -200℃~530℃ |
| A 217(WC6)ASTM | -10℃~450℃ |
| A 217(WC9)ASTM | -10℃~450℃ |
|
|
|
表2:填料类型及适用温度范围
填料类型 | 适用温度范围 | 上阀盖 型式 | 备注 |
PTFE V型填料 | -25℃~180℃ | 标准型 | (交变载荷)带压缩弹簧 |
-25℃~200℃ | |||
石墨+因科镍填料 | -20℃~400℃ | 标准型/散热型 | 一般 场合 |
纯石墨填料 (密度1.2) | -196℃~530℃ | 标准型/散热型 | 高、低温场合 |
表3:阀体密封垫片的适用温度范围
阀体密封垫圈类型 | 密封垫圈材质 | 适用温度范围 |
金属缠绕垫圈 | 0Cr17Ni12Mo2(316)+PTFE | -29℃~150℃ |
0Cr17Ni12Mo2(316)+石墨 | -20℃~360℃ | |
金属石墨垫圈 | 0Cr17Ni12Mo2(316)+石墨 | -20℃~360℃ |
锯齿垫圈 | 0Cr17Ni12Mo2(316) | -200℃~530℃ |
平垫圈 | 蒙乃尔(MONEL) | -200℃~550℃ |
表4:阀内件标准材质组合及使用温度范围
球芯材质(中国/美国) | 密封阀座材质 | 适用温度范围 | 备注 |
WCB+HCr ZG0Cr18Ni9/CF8 ZG0Cr18Ni12Mo2Ti/CF8M ZG0Cr18Ni9/CF8硬化处理 ZG0Cr18Ni12Mo2Ti/CF8M硬化处理
| 聚四氟乙烯(PTFE) | -29℃~150℃ | 非金属软密封 |
增强聚四氟乙烯(RTFE) | -29℃~180℃ | ||
对位聚苯(PPL) | -29℃~300℃ | ||
柔性石墨 | -20℃~360℃ | 非金属硬密封 | |
镍基变形合金 | -40℃~450℃ | 金属硬密封 |
硬化处理包括:镀硬铬、堆焊Stellite合金、淬火处理、渗氮处理、喷涂钛化钨等。
流量特性
图3 定位器凸轮/单元,调节阀组合流量特性
表5 转角与流量百分率
转角(°) | 0 | 10 | 20 | 30 | 40 | 50 | 55 | 60 |
Q/Qmax(%) | 1.0 | 2.2 | 4.6 | 10.0 | 21.5 | 46.4 | 68.1 | 100 |
表6 Cv值、标准执行机构组配及动作时间
公称通径DN(mm) | 25 | 40 | 50 | 80 | 100 | 150 | ||||||
阀座直径(mm) | 12 | 19 | 18 | 30 | 22 | 36 | 36 | 59 | 46 | 75 | 74 | 116 |
额定流量系数Cv | 5.6 | 14 | 12 | 30 | 20 | 50 | 60 | 150 | 100 | 250 | 240 | 600 |
执行机构型号 | 3601R-02 | 3601R-05 | 3601R-10 | 3601R-30 | ||||||||
动作时间(s) | 8.5 | 17 | 18 | 24 | ||||||||
公称通径DN(mm) | 200 | 250 | 300 |
|
|
|
|
|
| |||
阀座直径(mm) | 102 | 152 | 129 | 190 | 155 | 228 |
|
|
|
|
|
|
额定流量系数Cv | 400 | 1000 | 560 | 1400 | 760 | 1900 |
|
|
|
|
|
|
执行机构型号 | 3601R-60 | 3601R-100 | 3601R-150 |
|
|
|
|
|
| |||
动作时间(s) | 48 | 42 | 45 |
|
|
|
|
|
| |||
注: 表中执行机构为本公司标准配置,用户可根据应用工况及表7.1~7.4允许压差选择合适的执行机构。
允许压差
表7.1 100%阀座(软密封)
单位:Mpa
公称通径(mm) | 25 | 40 | 50 | 80 | 100 | 150 | 200 | 250 | 300 |
阀座直径(mm) | 19 | 30 | 36 | 59 | 75 | 116 | 152 | 190 | 228 |
执行机构 | 允许压差 | ||||||||
3601R-02 | 3.00 | 3.00 | 3.00 | 1.13 | 0.58 |
|
|
|
|
3601R-05 |
| 3.00 | 3.00 | 2.82 | 1.45 | 0.43 |
|
|
|
3601R-10 |
|
| 3.00 | 3.00 | 2.90 | 0.83 | 0.38 |
|
|
3601R-20 |
|
|
| 3.00 | 3.00 | 1.71 | 0.76 | 0.40 |
|
3601R-30 |
|
|
|
| 3.00 | 2.56 | 1.14 | 0.60 | 0.35 |
3601R-50 |
|
|
|
|
| 3.00 | 1.91 | 0.99 | 0.58 |
3601R-60 |
|
|
|
|
| 3.00 | 2.29 | 1.19 | 0.70 |
3601R-100 |
|
|
|
|
| 3.00 | 3.00 | 1.98 | 1.16 |
3601R-150 |
|
|
|
|
|
| 3.00 | 2.98 | 1.74 |
3601R-200 |
|
|
|
|
|
| 3.00 | 3.00 | 2.32 |
3601R-400 |
|
|
|
|
|
|
| 3.00 | 3.00 |
表7.2 40%阀座(软密封)
单位:Mpa
公称通径(mm) | 25 | 40 | 50 | 80 | 100 | 150 | 200 | 250 | 300 |
阀座直径(mm) | 12 | 18 | 22 | 36 | 46 | 74 | 102 | 129 | 155 |
执行机构 | 允许压差 | ||||||||
3601R-02 | 3.00 | 3.00 | 3.00 | 2.72 | 1.41 | 0.40 |
|
|
|
3601R-05 |
| 3.00 | 3.00 | 3.00 | 3.00 | 0.99 | 0.41 |
|
|
3601R-10 |
|
| 3.00 | 3.00 | 3.00 | 1.98 | 0.82 | 0.42 |
|
3601R-20 |
|
|
|
| 3.00 | 3.00 | 1.63 | 0.84 | 0.49 |
3601R-30 |
|
|
|
|
| 3.00 | 2.45 | 1.25 | 0.73 |
3601R-50 |
|
|
|
|
|
| 3.00 | 2.09 | 1.22 |
3601R-60 |
|
|
|
|
|
| 3.00 | 2.51 | 1.47 |
3601R-100 |
|
|
|
|
|
|
| 3.00 | 2.45 |
3601R-150 |
|
|
|
|
|
|
| 3.00 | 3.00 |
3601R-200 |
|
|
|
|
|
|
|
| 3.00 |
表7.3 100%阀座(硬密封)
单位:Mpa
公称通径(mm) | 25 | 40 | 50 | 80 | 100 | 150 | 200 | 250 | 300 |
阀座直径(mm) | 19 | 30 | 36 | 59 | 75 | 116 | 152 | 190 | 228 |
执行机构 | 允许压差 | ||||||||
3601R-02 | 10.00 | 10.00 | 10.00 | 1.28 | 0.66 |
|
|
|
|
3601R-05 |
| 10.00 | 10.00 | 3.20 | 1.65 | 0.48 |
|
|
|
3601R-10 |
|
| 10.00 | 4.00 | 3.29 | 0.97 | 0.43 |
|
|
3601R-20 |
|
|
| 4.00 | 4.00 | 1.93 | 0.86 | 0.45 |
|
3601R-30 |
|
|
|
| 4.00 | 2.90 | 1.30 | 0.67 | 0.39 |
3601R-50 |
|
|
|
|
| 4.00 | 2.16 | 1.12 | 0.66 |
3601R-60 |
|
|
|
|
| 4.00 | 2.59 | 1.35 | 0.79 |
3601R-100 |
|
|
|
|
|
| 4.00 | 2.25 | 1.32 |
3601R-150 |
|
|
|
|
|
| 4.00 | 3.37 | 1.97 |
3601R-200 |
|
|
|
|
|
|
| 4.00 | 2.63 |
3601R-400 |
|
|
|
|
|
|
|
| 4.00 |
表7.4 40%阀座(硬密封)
单位:Mpa
公称通径(mm) | 25 | 40 | 50 | 80 | 100 | 150 | 200 | 250 | 300 |
阀座直径(mm) | 12 | 18 | 22 | 36 | 46 | 74 | 102 | 129 | 155 |
执行机构 | 允许压差 | ||||||||
3601R-02 | 10.00 | 10.00 | 10.00 | 3.09 | 1.60 | 0.45 |
|
|
|
3601R-05 |
| 10.00 | 10.00 | 4.00 | 4.00 | 1.12 | 0.46 |
|
|
3601R-10 |
|
|
| 4.00 | 4.00 | 2.25 | 0.93 | 0.47 |
|
3601R-20 |
|
|
|
| 4.00 | 4.00 | 1.85 | 0.95 | 0.56 |
3601R-30 |
|
|
|
|
| 4.00 | 2.78 | 1.42 | 0.83 |
3601R-50 |
|
|
|
|
|
| 4.00 | 2.37 | 1.39 |
3601R-60 |
|
|
|
|
|
| 4.00 | 2.84 | 1.67 |
3601R-100 |
|
|
|
|
|
|
| 4.00 | 2.78 |
3601R-150 |
|
|
|
|
|
|
|
| 4.00 |
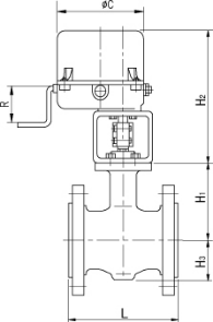
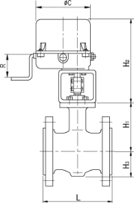
外形尺寸及重量
图4 RA1X13电动偏心旋转控制阀外形
表8 外形尺寸(mm)及重量(Kg)
公称通径DN | 25 | 40 | 50 | 80 | 100 | 150 | 200 | 250 | 300 | ||
φC | 225 | 255 | 335 | 470 | |||||||
L | 对夹式 | 102 | 114 | 124 | 165 | 194 | 229 | 243 | 297 | 338 | |
法兰式 | 127 | 165 | 178 | 203 | 229 | 267 | 292 | 330 | 356 | ||
H1 | 126 | 132 | 136 | 192 | 195 | 283 | 311 | 372 | 392 | ||
H2 | 358 | 398 | 468 | 594 | |||||||
H3 | 40 | 45 | 49 | 70 | 108 | 150 | 180 | 220 | 260 | ||
R | 80 | 160 | 160 | 200 | |||||||
重量 | PN1.6Mpa/ANSI150RF | 6 | 16 | 19 | 26 | 42 | 95 | 123 | 145 | 180 | |
PN2.5MPa | 7 | 18 | 21 | 28.6 | 46.2 | 104.5 | 135.3 | 159.5 | 198 | ||
PN4.0Mpa/ANSI300RF | 7 | 18 | 21 | 28.6 | 46.2 | 104.5 | 142 | 167 | 207 | ||
PN6.3MPa/ ANSI400RF | 8 | 21 | 25 | 33.8 | 54.6 | 117 | 160 | 188.5 | 234 | ||
注 1)夹套型高度H1及H5均增加15%。
2)阀体法兰及法兰端面距可按用户指定标准制造。

