
气动截止阀一般为全开全闭式。从流量特性考虑,截止阀和球阀具有启闭行程短,速度快,密封可靠,启闭静态
力矩小等特点。因而两类产品都得到应用。但从可靠性考虑,主流产品仍然是气动截止阀。
气动截止阀的气缸为定型产品,依作用方式可分单作用和双作用两种。单作用产品带复位圆柱弹簧,具有失气自动复位功能,即失气时气缸活塞(或膜片)在弹簧作用下,驱动气缸推杆回复到气缸初始位置(行程的原始位置)。双作用气缸无复位弹簧,推杆进退须依靠变换气缸气源的进出口位置。气源从活塞上腔进时,推杆向下运动。气源从活塞下腔进时,推杆向上运动。由于不带复位弹簧,双作用气缸对比同径单作用气缸具有更大的推力,但不具备自动复位功能。显然不同的进气位置使推杆有不同的方向运动。当进气位置在推杆的背腔时,进气使推杆前进,这种方式称为正作用气缸。反之进气位置在推杆同侧时,进气使推杆后退,这种方式称反作用气缸。气动截止阀因为一般需要失气保护功能,通常选用单作用气缸。
优点
1、结构简单,制造和维修比较方便。
2、工作行程小,启闭时间短。
3、密封性好,密封面间磨擦力小,寿命较长。
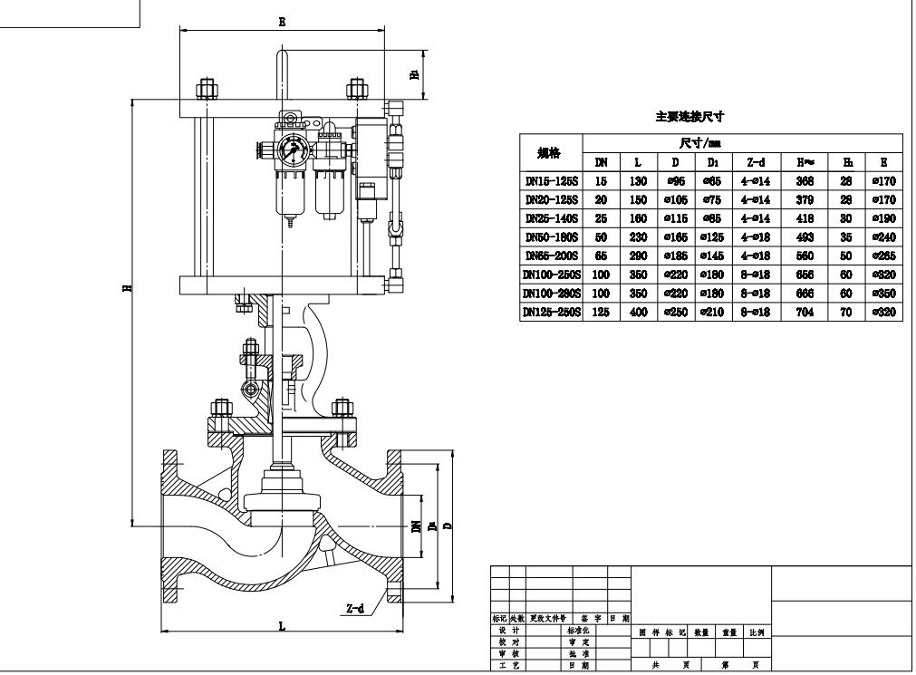
4、气动截止阀阀体的结构形式有直通式、直流式和直角式。直通式是最常见的结构,但其流体的阻力最大。直流式流体阻力较小,多用于含固体颗粒或粘度大的流体。直角式阀体多采用锻造,适用于较小通经、较高压力的的截止阀。
5、在开闭过程中密封面的摩擦力比闸阀小,耐磨。
6、通常只有一个密封面,制造工艺好,便于维修。
使用优点
1、 双重的密封设计(波纹管+填料)若波纹管失效,阀杆填料也会避免;
2、外泄漏,并符合国际密封标准;
3、没有流体损失,降低能源损失,提高工厂设备安全;
4、使用寿命长,减少维修次数,降低经营成本;
5、坚固耐用的波纹管密封设计,保证阀杆的零泄漏,提供无需维护的条件。
用途
编辑
截止阀属于强制密封式阀门,所以在阀门关闭时,必须向阀瓣施加压力,以强制密封面不泄漏。当介质由阀瓣下方进入阀六时,操作力所需要克服的阻力,是阀杆和填料的磨擦力与由介质的压力所产生的推力,关阀门的力比开阀门的力大,所以阀杆的直径要大,否则会发生阀杆顶弯的故障。从自密封的阀门出现后,截止阀的介质流向就改由阀瓣上方进入阀腔,这时在介质压力作用下,关阀门的力小,而开阀门的力大,阀杆的直径可以相应地减少。同时,在介质作用下,这种形式的阀门也较严密。我国阀门“三化给”曾规定,截止阀的流向,一律采用自上而下。
工作原理
编辑
截止阀开启时,阀瓣的开启高度,为公称直径的25%~30%时,流量已达到最大,表示阀门已达全开位置。所以截止阀的全开位置,应由阀瓣的行程来决定。
截止阀具有以下优点:
结构简单,制造和维修比较方便。
工作行程小,启闭时间短。
密封性好,密封面间磨擦力小,寿命较长。
截止阀的缺点如下:
流体阻力大,开启和关闭时所需力较大。
不适用于带颗粒、粘度较大、易结焦的介质。
调节性能较差。
截止阀的种类按阀杆螺纹的位置分有外螺纹式、内螺纹式。按介质的流向分,有直通式、直流式和角式。截止阀按密封形式分,有填料密封截止阀和波纹管密封截止阀。
安装维护
编辑
手轮、手柄操作的截止阀可安装在管道的任何位置上。
手轮、手柄及伟动机构,不允许作起吊用。
介质的流向应与阀体所示箭头方向一致。
截止阀,也叫截门,是使用最广泛的一种阀门,它之所以广受欢迎,是由于开闭过程中密封面之间摩擦力小,比较耐用,开启高度不大,制造容易,维修方便,不仅适用于中 低压,而且适用于高压。它的闭合原理是,依靠阀杠压力,使阀瓣密封面与阀座密封面紧密贴合,阻止介质流通。
截止阀只许介质单向流动,安装时有方向性。它的结构 长度大于闸阀,同时流体阻力大。




